[Burichan] [Futaba] [Nice] [Pony]  -  [WT]  [Home] [Manage]
[Catalog View] :: [Graveyard] :: [Rules] :: [Quests] :: [Discussions] :: [Wiki]

[Return] [Entire Thread] [Last 50 posts] [Last 100 posts]
Posting mode: Reply
Name (optional)
Email (optional, will be displayed)
Subject    (optional, usually best left blank)
Message
File []
Password  (for deleting posts, automatically generated)
  • How to format text
  • Supported file types are: GIF, JPG, PNG, SWF
  • Maximum file size allowed is 10000 KB.
  • Images greater than 250x250 pixels will be thumbnailed.

File 139959382223.jpg - (56.00KB , 600x600 , titlecard1.jpg )
573652 No. 573652 ID: 0b90a3

Expand all images
>>
No. 573653 ID: 0b90a3
File 139959384132.jpg - (30.80KB , 600x398 , 1-1.jpg )
573653

>>
No. 573654 ID: 0b90a3
File 139959384883.jpg - (33.06KB , 600x362 , 1-2.jpg )
573654

>>
No. 573655 ID: 0b90a3
File 139959385687.jpg - (49.29KB , 600x600 , 1-3.jpg )
573655

>>
No. 573656 ID: 0b90a3
File 139959387769.jpg - (43.45KB , 800x504 , 1-4.jpg )
573656

Good Morning.

You are Nathan Springer.

Awake, well rested, and almost ready for another day at work.
The last thing you want to do is be late.
You've worked too hard to get this position to get fired now.
>>
No. 573658 ID: 55c4cf

What is your position at work?
Why did you file off your fingerprints?
You appear to be a NERD.
>>
No. 573661 ID: dbe554

Why do you have deep cut marks everywhere along your back and arms, you don't self-harm do you?
>>
No. 573662 ID: ec0bf5

What kind of work is this, now? Is it dangerous? Why do your fingers need tape? And what the heck are you?
>>
No. 573663 ID: c12703

Remember to burn your clothes after every hit.
>>
No. 573665 ID: ca65e6

>>573656
Don't forget your phone.
>>
No. 573668 ID: 0b90a3
File 139960031317.jpg - (36.80KB , 600x500 , 1-5.jpg )
573668

>What is your position at work? You appear to be a NERD.

You are an ENGINEER.
So its safe to say, you're quite the NERD.
Like many of your fellow nerds, you have something that you care deeply about. Some would call it an obsession.

You fucking love space.

Which is why you've applied yourself towards a career in the aerospace industry, and wound up working at APEX COMMUNICATIONS.

Your job involves assembling the absurdly expensive and highly sensitive communication satellites that control the flow of information around the world. Without their network of instantaneous communication, modern society would collapse, or at least would find itself incredibly inconvenienced.

>Why did you file off your fingerprints?
>Why do your fingers need tape?
>Why do you have deep cut marks everywhere along your back and arms, you don't self-harm do you?

Unfortunately, part of your daily routine involves filing your nails back and taping them up. Its uncomfortable, but it helps with the SCRATCHES. Its something you've been working to control for most of your life, but...
>>
No. 573671 ID: 0b90a3
File 139960038321.jpg - (43.45KB , 800x504 , 1-6.jpg )
573671

Oh hey! Someone's at the door!

>Don't forget your phone.

Good call!
Looks like you just got a text too!

>what the heck are you?
Nate is a Gazelle
>>
No. 573672 ID: ca65e6

>>573671
Check the text first.
>>
No. 573673 ID: 57a559

>>573671
Consider changing color of dress pants
You look like you're not wearing pants at all

Check text while walking to door, check who's on other side through fishhole thingy.
>>
No. 573679 ID: 9ddf68

grab your phone and see who's at the door.
>>
No. 573687 ID: 8ab915

>>573671
Check text, then answer door. I hope it's not the local debt collector or something.
>>
No. 573699 ID: 2f4b71

>works in a cleanroom
>covered in fur

Man, you must have to bunny-suit it up 24/7.
>>
No. 573701 ID: 189a54

>>573671
Pick up your phone and check it while you head to the door. It's probably somebody from work or something.

When you have a chance, could you elaborate on this problem with the scratches? Do you just subconsciously scratch or is it like a self-harming issue?
>>
No. 573702 ID: 06d03f

Change pants to something less... fur-colored, then wonder who the hell knocks on the door in space (besides perhaps some VERY dedicated Jehovah's Witnesses). Unless you already know the answer, in which case kindly inform the voices in your head.

Also, first ever participation in a quest! Yay, I guess.
>>
No. 573707 ID: fe8b1a

Put marshmallows on fingers, call it a day
>>
No. 573731 ID: fe8b1a

Have you ever been checked for parasites? How did you get this far tearing yourself up?
>>
No. 573765 ID: e1609c

>>573671
grab phone on way to door, answer door while answering it. Usher person in to wait while you finish the call.
This is usually standard procedure, to my understanding
>>
No. 573772 ID: f31369

Ask whoever sent the text to help you get a sandwich, I don't care who it is.
>>
No. 573774 ID: ec0bf5

All right then, get your phone first on the way to the door, and tell them you'll be there in just a second. Check whatever message you got on the off chance it's relevant to whoever is here.
>>
No. 573775 ID: 0b90a3
File 139968353865.jpg - (48.22KB , 536x600 , 1-7.jpg )
573775

You pick up your phone and, since your fingers don't work very well on a touch-pad with tape all over them, you check it using your stylus.

Looks like Kim from work just sent you a link from an astronomy blog she follows. Skimming the headline, it seems a huge chunk of the Andromeda galaxy blue-shifted last night. You're not sure what to make of this, since Andromeda has always been blue-shifting. As all astronomy nerds know: it will eventually collide with the Milky Way and as it gets closer the wavelengths of light coming off of it are shortened and look more blue.

Of course a galactic collision could spell devastating and world ending consequences for anyone still around 4 billion years from now when its due to happen.

That's the thing about space, its full of amazing things that make for great sensationalist news, but the distances and time-scales involved make it hard to get worked up about. You'll have to remember to read the full thing later.

>Do you just subconsciously scratch or is it like a self-harming issue?

It's something you've had to deal with for as long as you can remember, but you've made a lot of progress over the years. Most of the scars are pretty old by now, but you've never wanted to hurt yourself.
Your THERAPIST speaks very highly of you and thinks that you've shown enough independence to live on your own. You both agree that you're much more comfortable this way, but you know that you can call her any time you feel that you need help.

>Have you ever been checked for parasites? How did you get this far tearing yourself up?

Oh absolutely, you're probably the cleanest person you know: and that's something considering most of your co-workers spend their day in a clean room.

>Change pants

You consider changing out of you khakis, but that will cost you valuable time before heading to work.

>Ask whoever sent the text to help you get a sandwich, I don't care who it is.
You don't think that Kim would appreciate that and you don't want to end up having to talk to HR.
>>
No. 573778 ID: 0b90a3
File 139968358212.jpg - (33.64KB , 600x417 , 1-8.jpg )
573778

You look through the peephole into the hallway and see the distorted but familiar face of your neighbor Zeke.

As far as neighbors go he's a pretty nice guy. He was a little too friendly when you first moved in, and would invite you over all the time, which you would always decline. After hearing about your condition, hes been pretty understanding and every once in a while you'll play video games with him from your respective apartments.
>>
No. 573780 ID: 0b90a3
File 139968361132.jpg - (54.46KB , 800x459 , 1-9.jpg )
573780

He senses you're behind the door and addresses you, but its hard to make out since his mouth is full of bees.

Zeke
>"Hey Nate, zzzzyou in there? You don't have tobzzz open the door or nothin'."

They roll off of his tongue like little fuzzy jellybeans and take flight to form a small droning cloud around his head.
>>
No. 573781 ID: c170fd

>>573780
What? WHAT? Um, do you regularly have hallucinations? Do you need to take a pill or something? If not, then go "Why is your mouth full of bees?"

Don't open the door, obviously.
>>
No. 573782 ID: 99624f

Um is that a usual occurrence with him?
>>
No. 573783 ID: 1f8505

>>573780

Holy shit. Keep that door closed, and ask why this guy has bees all over himself.
>>
No. 573784 ID: 189a54

>>573780
Holy shit. Don't answer, make sure he can't see you from a window or something. Unless you've been dealing with hallucinations along with those scratches, something really creepy is going on.
>>
No. 573786 ID: eb10ea

I take it from both your (and his) complete lack of distress that this is normal. Somehow. I'll take a stab in the dark and say schizophrenia.

Anyway, Just tell him you're getting ready for work.
>>
No. 573787 ID: fe8b1a

What other fun things have you had to deal with?
>>
No. 573788 ID: 53ba34

so you are a complete nutter.
>>
No. 573794 ID: 0bd34b

Ah.
Well then.
I'm going to take a flying leap off the limits of my ability to sensibly comprehend reality and tentatively assume you have no fucking clue why he has bees crawling out of his facial orifices.
Or you don't, and it's a perfecly normal, inexplicable piece of surreal bullshit. If of course, this is a symptom of some diagnosed disorder or mania you possess, I would normally suggest you immediately pop prescription but I.... have a feeling you should hold on and just slip a few pills in your pocket for later.
Either way, it's fine now. Everyone's fine, in here, how are you?
>>
No. 573797 ID: a95b2e

>>573780
So.... is this... normal?
>>
No. 573798 ID: 3e356e

Oh, is Zeke here a honeybadger? If the bees are a completely normal thing, or some symptom of an as of yet undiagnosed mental disorder, say hi and that you are going to work.

If the bees are not a normal thing, retreat back into the bathroom and lock the door.
>>
No. 573802 ID: 7ab2db

>>573780
The level, unsurprised tone of that statement combined with the whole thing with the bees in the guy's mouth is giving me flashbacks to the SCP Foundation journal about bees.

This does not bode well for the previously presumed sanity of Nathan.
>>
No. 573849 ID: fe8b1a

>>573780

"I'm here all good how are the bees?"
>>
No. 573867 ID: 0b90a3
File 139975548039.png - (60.07KB , 600x617 , 1-10.png )
573867

>Um is that a usual occurrence with him?

Zeke doesn't even take notice of the swarm surrounding him. No one ever does.

>I'll take a stab in the dark and say schizophrenia.

The official diagnosis is "delusional parasitosis", the belief that you and others around you are infested with insects. Its hypothesized that the reason for the hallucinations is tied to you having schizophrenia, but its been difficult to pin down exactly the nature of your issues.

> Do you need to take a pill or something?

Over the years you've tried a number of treatments to reduce or eliminate the insects, but nothing ever seemed to work. The most you've been able to accomplish is coping with the condition and you take an antidepressant daily to at least help with the anxiety. Like most people with psychological disorders, managing the problem is your goal, not "curing" it.

>so you are a complete nutter.

Well, not completely. As a rational individual, you've tried to tell yourself that they aren't real, but its hard to believe when they're buzzing around you and prickling your skin with their tiny claws. Almost everyone seems to have some kind of infestation, so being around people can be incredibly stressful.

You respond to Zeke, but don't open the door.

>"I'm here all good how are the bees?"

Nate
"Hey, what's up Zeke? How are the bees?"

Zeke
>"ZzzzZPretty good, I guesszzzzz? I dunno, you tell me. I waszzzz just wondering if you'vvvvvve seen Lester at all today."

>Oh, is Zeke here a honeybadger?
Zeke is a Ferret.
>>
No. 573868 ID: 0b90a3
File 139975548446.png - (132.55KB , 600x482 , 1-11.png )
573868

Lester lives down the hall from you. He knows you make satellites, and you're pretty sure he thinks you work for the government. You haven't seen him in a while though.

"No, why?"

Zeke points towards Lester's apartment.
>"Its just that he'sbbzzzz left a bunch of hiszzzzzzshit in the hall. I was juszzzzztt wondering if he said anything about it. Bzzzzzyou know how he can be about hiszzz stuff."

You both suspect Lester to be a bit of a hoarder. You remember finding a bag of what looked like trash in the hall and was accused of theft after throwing it away. He's avoided you for the most part since then, which has worked out okay for you; even if it means being on his list of "agents".
>>
No. 573869 ID: c170fd

Almost everyone? Does anyone NOT have an infection? Have you tried to find out why? Either your mind is excluding them from the hallucination for some reason, or...

Do we have time to check on Lester? If so, tell Zeke you'll check on Lester, then ask him to move on so we can knock on Lester's door.
>>
No. 573870 ID: bbb906

Okay, sooo what's it mean to be one of Lester's 'agents'?
>>
No. 573871 ID: 1db8fa

Oh, is this a special building for crazies? What's Zeke's problem?

In any case, apologize and ask him to step out of sight for a moment before you're late for work.
>>
No. 573874 ID: d315b1

>>573868
So Lester's paranoid, you hallucinate... does Zeke have any mental issues you know of?
>>
No. 573875 ID: fe8b1a

>>573868
THose bees aren't buzzing they're sleeping... they're just looking for a place to nap

purple ferrets are adorbs

Silly you... you should have told lester that the "agents" were always looking through his things when he left it in the hall, bet he'd stop leaving messes then =D

What are we doing now?
>>
No. 573879 ID: 189a54

Promise to check on Lester, then ask Zeke to move away from the door so you won't flip out trying to head outside.

Also, a bit more info on where you live would be nice. I'm guessing this area is for people like yourself? People with some sort of mental condition deemed safe enough to live by themselves? If so, what's Zeke's thing?

And speaking mental conditions, are you sure this delusional parasitosis is the only issue you've been diagnosed with? You seem to be hearing voices in your head, as well.
>>
No. 573917 ID: 0b90a3
File 139978209606.png - (96.20KB , 800x351 , 1-12.png )
573917

>And speaking mental conditions, are you sure this delusional parasitosis is the only issue you've been diagnosed with? You seem to be hearing voices in your head, as well.

You've been told that, since the condition also involves visual, auditory and tactile hallucinations, its likely a symptom of something else which has so far eluded diagnosis.

>Oh, is this a special building for crazies?

You hadn't considered that your neighbors might also be in the same living situation as yourself. Your therapist helped set you up with this apartment, it would make sense to have multiple patients living here and be able to check up on them. You'll have to ask next time you talk to her.

>What's Zeke's problem? Does Zeke have any mental issues you know of?

Not that you're aware of but a little more than 1/4 of all Americans have some kind of mental disorder, so its entirely possible. If so, Zeke hasn't been forthcoming about it.

>Almost everyone? Does anyone NOT have an infection? Have you tried to find out why? Either your mind is excluding them from the hallucination for some reason, or...

It can be hard to tell since the creatures aren't always visible. There are a few people who you've never seen with insects, but unfortunately that doesn't mean that they aren't there. You know that you shouldn't make judgements about people based off of things that probably aren't even real, but you generally find it safer to assume they are infested. You wish you could figure out why certain people have them and others don't, but you haven't been able to find any correlation yet.

>Promise to check on Lester, then ask Zeke to move away from the door so you won't flip out trying to head outside.

Nathan
"I'll be sure to let him know if I see him, but I gotta get to work, man."

Zeke
>"Oh right, sorry zzzzzz. Let me know when you get home, I want to try zzzzout that new DLC."

With that, Zeke moves out of your field of vision followed by his swarm. After a moment, you hear his door open and close.

You still have a few minutes before you have to leave for work, it might pay to double check that you aren't forgetting anything.
>>
No. 573918 ID: c170fd

>>573917
Got your lunch? Favorite mug for your coffee break? Wallet, keys, ID badge or other security clearance?

Make sure to turn off your computer before you leave.
>>
No. 573919 ID: fe8b1a

Do you love your job?
>>
No. 573923 ID: 53ba34

mask to keep the bugs out of your mouth?
>>
No. 573926 ID: 189a54

>>573917
Have you eaten something yet? A good day's work starts with some breakfast. Do you have a lunch or lunch money, and whatever clearance things your job needs? Do you need to turn off your computer before heading out? Are all lights, faucets and stoves off?

Also, while you have a minute check that fancy phone of yours for when you can see your therapist again.
>>
No. 573936 ID: 257051

>>573917
Who's that in the photo-frame next to your desk?
>>
No. 573937 ID: e3aff6

>followed by his swarm
Do the insects ever show up before you see someone? Also, do they sting you or whatever if you get close or just buzz around being creepy?
>>
No. 573970 ID: d0864b

>>573918
This should be everything you need, I think, unless you take your meds during the day, then you need to bring those too. Something you can eat on the go for breakfast might also be nice. Maybe a bus pass or something if you don't drive.
>>
No. 573981 ID: b6178d

Any e-mails or messages you should be aware of before you head to work?
>>
No. 574023 ID: 0b90a3
File 139985043167.png - (190.90KB , 600x692 , 1-13.png )
574023

>Got your lunch? Favorite mug for your coffee break? Wallet, keys, ID badge or other security clearance?

You grab a sandwich out of the fridge for lunch, and pull your favorite mug out of the drying rack by the sink. You stuff your wallet, keycard and keys in your pockets and clip your ID to your shirt pocket.

>mask to keep the bugs out of your mouth?

Good call! You grab one from your bathroom.

>Have you eaten something yet?

You've already had some cereal before you took your medication this morning, that usually holds you over till lunch.

>Also, while you have a minute check that fancy phone of yours for when you can see your therapist again.

Looks like you aren't due to see Dr. Cooper for another two weeks, but you have her cell number if you ever need her help. You also note that you should probably charge your phone tonight.

Actually, now that you think about it, if your neighbors are seeing her it might be better to ask them about it directly. She probably isn't allowed to discuss other patients with you.

>Who's that in the photo-frame next to your desk?

That's a box of disposable rubber gloves, you grab a pair in case you need them.

>Any e-mails or messages you should be aware of before you head to work?

You take a look at your e-mail and see that Hiro sent you a message last night.

Nate,
Need to talk to you about #18.
Hiro

Well that's nebulous.
#18 probably refers to Midas18, one of the first satellites you helped build: designed to as a way to capitalize on the new global cryptocurrency market. You quickly open up a tracker and note that all of the systems that have been using Midas are sharply down since last night.

"Shit..."

Hiro probably doesn't want to talk about it over unsecured e-mail, you don't want to be the one to leak inside info accidentally and start a market crash.
You power down your computer and get ready to head out.
>>
No. 574024 ID: 0b90a3
File 139985043823.png - (116.48KB , 681x500 , 1-14.png )
574024

>Do you love your job?

Probably the only thing you'd rather be doing is actually working in space, but you doubt that will ever be a possibility. Work is challenging, even stressful at times, but they've been pretty accommodating and you're able to do a fair amount of work from home. However you get the feeling that today is going to be kind of rough.

>Do the insects ever show up before you see someone? Also, do they sting you or whatever if you get close or just buzz around being creepy?

That's where it gets tricky. The insects seem to be semi-independent, but sometimes it can be hard to tell what's real and what's just a hallucination. You don't think you've ever been stung or attacked by them, but you've received bug bites in the past and you don't always know where or when you got them. Even without being attacked, the constant flitting across your vision and droning of their wings can be enough to send you into a panic; making you retreat into your SAFE PLACE.

You check the peephole again; seeing that the hallway is clear, you step out of your apartment and lock the door.

Okay off to work...okay what the hell is this?
>>
No. 574026 ID: 99624f

Is someone cleaning out a apartment?
>>
No. 574027 ID: 189a54

>>574024
Argh, Lester's stuff. Use dem gazelle(?) legs and jump past the bags if you can--no need for him to be any more upset than he already is about you touching his bags.
>>
No. 574030 ID: bbb906

Another thought as long as we're getting a mask to cover the mouth, might be goggles to shield your eyes...
And as a wild and crazy poke, does Radula mean anything to you?
>>
No. 574031 ID: a36601

>>574024
It's Lester's shit that he left out in the hallway. You got time to carry one or two bags? Move them in front of his door. Otherwise, ignore it; you've got things you have to do.
>>
No. 574047 ID: c170fd

>>574024
Bang on his door and tell him to get his stuff out of the way before someone trips and sues him for personal injury.
>>
No. 574051 ID: 321d85

Yeah, uh, just jump over it for now. If he's touchy about his bags of stuff we can deal with it later, when we're not going to be late for work.
>>
No. 574091 ID: df3001

Clumisly trip over the trashbags thereby revealing something freaky/weird
>>
No. 574165 ID: 0b90a3
File 139994053883.png - (213.53KB , 624x800 , 1-15.png )
574165

>Argh, Lester's stuff. Use dem gazelle(?) legs and jump past the bags if you can--no need for him to be any more upset than he already is about you touching his bags.
>Yeah, uh, just jump over it for now.

Right, no sense in risking Lester's anger by touching his belongings.
You get a running start and try vaulting over the pile.
>>
No. 574166 ID: 0b90a3
File 139994054241.png - (187.14KB , 647x600 , 1-16.png )
574166

>Clumsily trip over the trashbags thereby revealing something freaky/weird

To be honest, you really aren't the most coordinated person. You muse on this as you feel your foot catch on one of the bags and tumble forward into a face-plant. The plastic stretches and tears , spilling grocery bags, empty burger wrappers and crumpled receipts around you like the dead leaves of a greasy autumn.

"FFFFFFuuuuuuuuuuccckkkkkk-"
>>
No. 574167 ID: 0b90a3
File 139994054823.png - (387.64KB , 800x800 , 1-17.png )
574167

You roll over to get up and you feel the blood drain from your face. Clinging to the leg of your pants are oily black shapes, wings stuttering as they hang onto your thrashing calf. Your hands instinctively curl themselves into hook-like claws and you rake desperately at the bristly roaches.

"FuckfuckfuckfuckfuckfuckfuckfuckfuckfuckFUCKFUCKFUCK!"

You slap madly at the cloth, rolling up the legs of your pants; checking and double checking for any hidden insects. FUCK you can still FEEL them on you, even if you can't SEE them, prickling your flesh with tiny claws.
>>
No. 574168 ID: c170fd

>>574167
Sue Lester for personal injury.
>>
No. 574169 ID: bbb906

Calm down, take a deep breath and take stock of things- Where do you feel the bugs crawling on you?
If you FEEL them, but do not SEE them, they may not be there-your hallucinations can take on a tactile form when they begin.
And if ALL your sense do agree that there are bugs on you, don't scratch- the bugs might not be real but the damage you do is garunteed to be, instead, quickly and throughly press all of your availible surface against something else-lie flat on the floor and then roll over, rub your hands against your face, curl up into the fetal position then uncurl, and be on your way-anything that could hang on through that probably isn't real, and you should ignore it.
>>
No. 574173 ID: 189a54

>>574167
Quickly get up and hurry past while brushing at yourself, the farther you get from them the easier it will be to calm yourself down.

Also, for future note--if Lester tries to get an attitude about the bags when you see him, seriously consider that suing suggestion. You could've seriously hurt yourself because of his garbage, especially with your condition.
>>
No. 574174 ID: 53ba34

remove pants
>>
No. 574175 ID: 7ee590

>>574167
THERE'S ONE ON YOUR OTHER LEG!

HEY IS THAT A TICKLE ON YOUR LEFT NIPPLE?
>>
No. 574176 ID: fe8b1a

>>574167

They're in your underwear
>>
No. 574178 ID: ca0da5

Something to know about insects: They carry with them a sort of feral intelligence. They can't recognize all the things a person can, but they are capable of reacting in a huge variety of ways to specific things they do recognize. Back away from the location a bit, rest against the wall, close your eyes, and focus. Clear your mind, and will a ripple outward. You are a pebble, and this is a pond. Push the water skippers out from your point. An empathetic wave of confidence, not anger or fear, but of sure certainty that nothing will remain close to you anymore, they will sense this and move away.
Only if this doesn't work should you start to really panic, because this should be a powerful trick of the mind and anything that's immune to it has a more powerful will than yourself and that's not at all safe. (That, or your willpower just sucks.)
>>
No. 574180 ID: e73b69

take deep breaths
>>
No. 574186 ID: df3001

whenever you see bugs try to put them in people clothes or make them pink. try really hard and see if it works and if it does they're probably not real because your ~imagination~ affects them.
>>
No. 574188 ID: df3001

or just stop horsin around because youre going to be late to work buster brown
>>
No. 574279 ID: ec0bf5

The proper response to stepping into a nest of insects and getting them all over you is to run away FIRST, and only then try to get them off of you. Otherwise more will just climb onto you. Also uh I guess we can't rule out that these aren't a hallucination considering where they're coming from so it's a good thing that cockroaches can't hurt you. Just get out of there first.
>>
No. 574294 ID: 0b90a3
File 140003730896.png - (208.15KB , 504x600 , 1-18.png )
574294

>remove pants
>They're in your underwear
>THERE'S ONE ON YOUR OTHER LEG! HEY IS THAT A TICKLE ON YOUR LEFT NIPPLE?

You do a dance of panic in the hallway and peek into your clothes, but resist the urge to strip yourself naked.

>Calm down, take a deep breath and take stock of things- Where do you feel the bugs crawling on you?
If you FEEL them, but do not SEE them, they may not be there-your hallucinations can take on a tactile form when they begin.


You... you...think you got them all. You can't find any more on you, but the sensation of being infested remains.
>>
No. 574295 ID: 0b90a3
File 140003731322.png - (93.90KB , 287x800 , 1-19.png )
574295

>take deep breaths
>Back away from the location a bit, rest against the wall, close your eyes, and focus.

You try to remember what Dr. Cooper told you. Taking a deep breath you close your eyes.

You leave the garbage strewn hallway behind.
You empty your mind.
You ignore all senses.
>>
No. 574296 ID: 0b90a3
File 140003731898.png - (72.11KB , 800x769 , 1-20.png )
574296

You open your eyes and find yourself in your SAFE PLACE.

You find yourself at Earth-Moon Lagrange point 1.

In front of you lies the Earth, glowing with the gentle blue halo of scattered sunlight. Behind you is the Moon, a seriene, sterile monolith.

You are floating in orbit, gravitationally balanced bewteen the two: dancing an elegant three body celestial waltz.

Your only sensation is the sound of your breath, ragged and gasping at first but slowly stabilizing. Around you is nothing: no insects, no people, only miles of void between yourself and the nearest object.
>>
No. 574298 ID: e1609c

>>574296
do a flip
>>
No. 574299 ID: 0ee153

>>574296
Out of curiosity, how do you justify your breathing in this place, if at all? I'm aware it helps calming down, but have you given some thought to how to breathe in space?

If not, I suggest you do so, since it might make a decent distraction.
>>
No. 574303 ID: b9c596

Check to see if you can see that blue shift from here.
>>
No. 574304 ID: f6f4c3

>>574296
Admire the little blue marble
>>
No. 574314 ID: 7ee590

>>574296
hey aren't both Lagrange points absolutely packed full of debris? aren't you worried you're gonna get hit by a space rock or ship part or something?
>>
No. 574318 ID: b8ceae

>>574314
Points L1, L2, and L3 are not stable.
Only L4 and L5 are stable.
>>
No. 574330 ID: df3001

Stop trying to mess with his happy place, guys. Rude. Alright dude you look real serene right now but you better get a move on cus getting chewed out by the boss man is totally not serene.
>>
No. 574331 ID: 53ba34

>>574318
L1 is stable enough, he isn't gonna spend years here.
>>
No. 574335 ID: abb19c

don't think about that episode of Dr. Who where the space station got invaded by giant space bugs.
>>
No. 574391 ID: 2f4b71

>>574318
L4 and L5 are only semi-stable, you need to be in a Lissojou orbit about them. Anything just sitting at a Lagrangian point without station-keeping will float off in short order.

Regardless, be in your Safe Place. Look for the fake glittering of the Kordylewski clouds (shut up, they can exist if you want!). Watch the slight twinking of the Earth's limb as mountains rise and fall as the planet rotates. You're about 58000km from the surface of the moon so you probably won't be able to spot your shadow, but you can look out for the flashes of meteorite impacts.
>>
No. 574453 ID: 0b90a3
File 140011883632.png - (127.11KB , 366x750 , 1-21.png )
574453

>Out of curiosity, how do you justify your breathing in this place, if at all? I'm aware it helps calming down, but have you given some thought to how to breathe in space?

When you first started doing this relaxation exercise you'd imagine yourself in a space suit with EVA gear, but you found that to be too embarrassingly nerdy, even for you.

>Admire the little blue marble

It gleams in the dark like a jewel, the day facing side a colorful opalescent vista while the the night facing side is a delicate spider web of lights. You watch as the light ripples across mountain ranges and washes Up here the sheer distance between everything is enough to calm you down.

>Check to see if you can see that blue shift from here.
>do a flip

You flip yourself around and reorient yourself to face the Andromeda Galaxy. Even though this is just a mental construct you decide to check it out.
>>
No. 574454 ID: 0b90a3
File 140011883919.png - (223.37KB , 600x691 , 1-22.png )
574454

Its not like anything would be visible to the.. woah.

One of the arms of the beautiful spiral galaxy has a dark, violet bruise that must be thousands of light years across. Stars are being distorted and bent as if warped by some incredible mass.

As you watch, an unsettling feeling develops in your stomach which slowly builds until you feel as if your whole body is falling. Something is moving out there, pulling you out of balance and dragging you towards it into the irresistible grasp of its gravity well.

You feel yourself being spiraling, accelerating, beings stretched out into an impossibly long filament. The nothingness swallows you and....
>>
No. 574455 ID: 0b90a3
File 140011884335.png - (155.52KB , 800x494 , 1-23.png )
574455

You open your eyes.
You're back in the hallway.
Garbage litters the floor.
The roaches, if they were even real, have scuttled off into secret places out of sight.

Zeke peeks at you from his doorway, a few errant bees perching on his shoulder.

>"Hey... you okay? I heard you fall."
>>
No. 574457 ID: 2bfcdf

That was... just your imagination, right?

Say there were roaches in the garbage, but you're okay and have to go now. I think we'd better get to work and get as much information about Andromeda as possible.
>>
No. 574464 ID: 189a54

>>574455
Tell Zeke what happened, ask him if he could check the bags for bugs for you since you have to go to work. After that you should probably get a move on. This episode has probably put you behind schedule for work.
>>
No. 574466 ID: 40935b

Roaches. They're gone now.

And... So are the bees?
>>
No. 574468 ID: e3aff6

That was the Andromeda thing from the article. Maybe you subconsciously picked up more of it than you realized.
But your real reason for knowing is totally space magic.
>>
No. 574469 ID: 57a559

>>574455
Just... freaking out over Roaches.
Okay Zeke, put "talking to Lester about the garbage" on the schedule, because this has gone a little too far.
>>
No. 574473 ID: 497ec2

Your Therapist taught you to do that? How long have you know this 'Therapist'? Did you see others before coming to her, or was she/he the first one?
>>
No. 574488 ID: 2f4b71

You're intuiting that the additional blue-shift of part of Andromeda is due to a supermassive object passing between you. The news report didn't mention "Holy crap, we found a free-roaming black hole!", so if you happen know anyone in the Astronomy sector you can call in a favour with to grab some telescope time, you might be able to discover it first.
>>
No. 574515 ID: 9a281a

>Hey... you okay? I heard you fall.
Default lame excuse go: I fell. (It's actually true for once!)
>>
No. 574593 ID: 4d82d5

if you're okay, tell him you're okay.
>>
No. 574756 ID: ba8629

"I tripped over the bags, and there may, or may not, have been roaches. Nothin' broken. Gotta get to work - peace."
>>
No. 574757 ID: ba8629

"I tripped on all this trash."

It's okay to sound upset. This is ridiculous.
>>
No. 574760 ID: 0b90a3
File 140028693502.png - (107.96KB , 447x650 , 1-24.png )
574760

You shake yourself off, still reeling a little bit.

"Yeah, I'm fine... just freaking out over some roaches."

Zeke hesitates, obviously thinking about giving you a hand, but decides to give you your space.

>"Sorry about that. I'll try and move some of that crap over later. I don't care what he thinks of me, its too dangerous to leave that crap blocking the hall."

"Thanks, Zeke. Sorry, but I have to run or I'll be late."
>>
No. 574762 ID: 0b90a3
File 140028730774.png - (187.20KB , 700x659 , 1-25.png )
574762

>That was... just your imagination, right?

You... think so. You shouldn't be able to pick up on anything like that in your mind. You aren't psychic or anything, at least you don't think you are.

>You're intuiting that the additional blue-shift of part of Andromeda is due to a super-massive object passing between you.

If something huge is hurtling in your direction, any stars dragged along for the ride would probably be blue-shifted. But nothing should be able to affect an area of space that big overnight, not even a super-massive black hole. Still, the encounter was enough to leave you shaken.

>Your Therapist taught you to do that? How long have you know this 'Therapist'? Did you see others before coming to her, or was she/he the first one?

You've been seeing different therapists and psychologists in one form or another since first grade. Apparently you didn't always mind the insects, until the day you tried playing in an anthill, not realizing it was real. You started seeing Dr. Cooper several years ago when things were.... bad. She helped ease you off of a lot of medications that clearly weren't doing anything and let you reclaim a lot of your independence.

You rush downstairs and into the parking lot.
As head to your car, you notice a shabby figure approaching you.

Lester
>"Hey, hey! Wanna ask you something! Hold up spaceman!"
>>
No. 574763 ID: ba8629

"What."

Don't actually stop moving for your car, but don't speed up either.
>>
No. 574764 ID: 53ba34

ask not to get too close, you have a uhh.. germ thing.
>>
No. 574765 ID: 0bd34b

>>574762
You don't want to totally blow someone off that calls you a spaceman, ask him to make it quick since you need to head to work.
>>
No. 574778 ID: 2bfcdf

>>574762
That's lester. Glare at him and say you tripped over his bags of trash so this better be good.
>>
No. 574780 ID: 9a281a

*Sigh* There's no point in antagonizing him. That'll just make your morning worse. Resign yourself to talking to him, briefly.

Yes, Lester? I'm sorry but I'm kind of in a hurry here...
>>
No. 574789 ID: ca0da5

>>574295
Wait, that actually worked? Cool. Strong willpower you got there, Nathan!
>>574762
"I accidentally tripped over one of your bags, but didn't otherwise touch them, if that's what it's about. If it's something else, please be quick, I don't want to upset my superiors by being late." Try and word it politely, while bringing up that you did accidentally touch his stuff, but also be willing to hear what he has to say... if he can keep it short and to the point.
>>
No. 574790 ID: df3001

What's our time situation anyway, you're a nerd, so you must be the type to always leave fairly early. No sense being rude he looks like he might be bad to get on the wrong side of. But he might get mad anyway when he sees his garbage torn up.
>>
No. 574793 ID: 189a54

>>574762
Ugh, Lester. Acknowledge him but don't stop moving toward your car. This guy's made you late enough already with those stupid bags, so if it looks like what he wants to say will take a bit just tell him you'll have to hear about it later.
>>
No. 574809 ID: 05f838

that faggy little box better not be what you call your car.
>>
No. 574823 ID: 0b90a3
File 140035607480.png - (151.84KB , 600x572 , 1-26.png )
574823

You don't stop moving, but he shuffles after you prompting you to sigh.

Nate
"What do you want Lester? I'm going to be late for work."

Lester
>"Work, right... um.. Listen, has anyone you know been acting... strange?"

In spite of yourself you stop and stare for a moment. A cockroach scurries across his face and you supress a shudder before continuing towards your car.

>"Hey, I know what people think of me: I'm a nut right? Well,I'm the only person in this godforsaken city that still uses his eyes. I've seen things and I've made the connections, but I don't know if they've gotten to you yet."

"-The hell are you talking about?"

>"People who are not who they seem. Agents in disguise, preparing the way for what's coming. They're everywhere, but hard to see unless you pay attention."
>>
No. 574824 ID: 2bfcdf

Ask him how he can tell they're in disguise.
>>
No. 574825 ID: af4218

Have the people you've seen that don't seem to be infested been strange or off in some way? Maybe there is a connection to be found here between the uninfested and the "agents" he is talking about.
>>
No. 574826 ID: 53ba34

what if only people have bus? that would be... kinda ironic. only people full if insects are real.
>>
No. 574829 ID: df3001

It might not help to get angry at him over his stuff in the hall, I mean you said yourself he is struggling with mental problems. Still should bring up the bags and how that's not ok to pile them up in everyones hallway.
>>
No. 574830 ID: 9a281a

Tell him honestly, that if there were people acting strangely, you might have other things distracting you from noticing.

>>574825
Hmm. Isn't almost everyone infested from Nate's point of view? Lester's description of their being everywhere makes these supposed agents sound more common than Nate's observations of uninfested.
>>
No. 574831 ID: 2bfcdf

>>574830
Maybe Nate just doesn't pay enough attention to notice most of the non-infested people.

Hey, crazy theory time: What if Lester's roaches are real, not hallucinations, and he's trained them to crawl on his body as a disguise so he can fit in with those that have bugs?
>>
No. 574833 ID: 57a559

>>574823
Well, even if there are agents, why is it a concern? The strangest thing I see typically is roaches and a lot of bugs. But no one gets to see those Lester. I've love to ignore them but I can't. I'd trade being pursued by agents then all these insects.

Do you think I'M crazy, Lester?
>>
No. 574844 ID: 2f4b71

>>574823
"Nate, you know I'm schizophrenic. I may not be the best barometer for telling if someone is acting strange".
>>
No. 574845 ID: 54af1f

>>574844

This. But ask him how anyway.
>>
No. 574887 ID: 05f838

ask him if he owns any tinfoil hats. he seems like the type.
>>
No. 574907 ID: fe8b1a

>>574844

^^^^^^


also "And could you atleast leave a path to walk in the hallway? I know you don't want me touching your things but I have to go to work most days and your bags are in the way,"
>>
No. 574941 ID: 0b90a3
File 140044918938.png - (182.47KB , 600x486 , 1-27.png )
574941

>Have the people you've seen that don't seem to be infested been strange or off in some way? Maybe there is a connection to be found here between the uninfested and the "agents" he is talking about.

Hard to say, you certainly do work with some odd characters; but they're a bunch of engineers and programmers. If there really are "agents" out there you may just have to keep your eyes open.

Nate
"To be honest, I may not be the best at gauging if people are acting strange or not, Lester."

Lester
>"True, but you don't let anyone get close to you, and you're always watching. Which is why I don't think they've gotten to you yet."

Nate
"Well do you have anything else to go on besides 'strange behavior'? How do you know when someone is in disguise?"

Lester
>"I'm not ready to name names yet, spaceman, but I've noticed people changing. People with nothing in common and who have never met, all in communication with the same few individuals. There's something going on around here."

Nate
"Well, if I see anything strange, I'll let you know, but I have to get going. Oh, could you move some of those bags in the hall? I don't want to mess with your stuff but there's no room for me to get by in the morning."

Lester looks lost in thought for a moment as if tracing his way through a maze in his head.
>"Sure, sure. Just remember, keep your eyes open."

You push the unlock button on your car key and the door clunks in acknowledgement. You check the clock on the dashboard as the tiny engine fires itself up: not doing too bad. As long as traffic isn't too heavy you should be able to make it to work with time to spare.

As you drive off Lester remembers one last piece of advice.
>"And don't let them get to you!"
>>
No. 574943 ID: 2bfcdf

>>574941
Wait, get to you how?
>>
No. 574946 ID: 9a281a

>And don't let them get to you!
I'll do my best. You too, Lester.

Anyways, switch the radio on to to your favorite nrp channel, musical genre, and/or crazy AM radio conspiracy talk show and listen on your commute.
>>
No. 574947 ID: 57a559

>>574941
My name's Nate, Lester. Not Spaceman.
But, yeah, stay safe too.
>>
No. 575065 ID: 0b90a3
File 140055461758.png - (250.71KB , 700x700 , 1-28.png )
575065

You head out for your morning commute and switch on the radio.

>Anyways, switch the radio on to to your favorite nrp channel, musical genre, and/or crazy AM radio conspiracy talk show and listen on your commute.

Unlike certain individuals you try get your news from sources not prone to screaming and accusation. A sedate, inoffensive instrumental riff plays as you turn to the local NPR affiliate.

"And welcome back to your morning markets with David Brassaca. Cryptocurrencies. You've been hearing a lot about them in the news lately even if a lot of people don't understand them. Well as of this morning several cryptocurrency markets are trailing significantly downward, here to explain is Walter Byrne, an expert on these small, distributed economies."

>"Good morning David"

"Well, first off, this isn't the first time cryptocurrencies have taken sudden dives, what's happened?"

>"Like you said, these markets have always been volatile, so this shouldn't be a huge surprise. Because they still aren't easily exchanged for traditional currency, crashes in the past have happened when holders suddenly found themselves unable to trade or unload their cryptocurrency."

"So, what? They can't turn them into a buck, and get worried they're going to be left holding a bag of worthless cyber-cash, right?"

>"Essentially, yes. Additionally, these new systems have had a host of security issues linked to major value drops. However, ever since Apex stepped into the game, the large scale security breaches of the past have been all but eliminated."

"Apex, being Apex Communications. Just last year they opened up a service that they claimed would finally make cryptocurrency stable enough to be part of the world economy. They haven't released any comment on this morning's events but crypto advocates are already calling for blood."

You groan and turn off the radio. Sounds like today will be all about damage control.

Fortunately your car is able to slip through traffic pretty easily, even if you have to worry about larger vehicles being able to see you.
You pull up to the security checkpoint with a few minutes to spare.
>>
No. 575066 ID: 0b90a3
File 140055462017.png - (159.26KB , 600x444 , 1-29.png )
575066

You flash your ID card in front of the scanner and the guard waves at you. As usual, an enormous locust snaps its wings robotically from its perch on his shoulder.

Morgan
>"Mornin', Nate. Suppose you heard about last night?"

Nathan
"Not really. Just got an e-mail from Hiro. What's going on?"

Morgan
>"PR is going to make a statement. Orders are to keep everyone back till then. Some of these guys are... intense."
>>
No. 575067 ID: 0b90a3
File 140055462510.png - (111.04KB , 700x442 , 1-30.png )
575067

He moves his head to indicate behind you and you look into the rear-view mirror. Across the street a surly looking man in a trench coat is lounging against a van with a pump action shotgun openly slung over his shoulder.
>>
No. 575068 ID: 2bfcdf

>>575067
...he doesn't have any bugs on him, does he? Interesting...

Ask the guard what you're supposed to do, then.
>>
No. 575074 ID: eaa372

Ask Morgan about open carry gun laws, if he asks why just mention the intense looking guy with the shotgun. Check your cellphone for a signal in case you need to call the cops.
>>
No. 575086 ID: 9a281a

...definitely intense. Stay safe, Morgan. I'll see what we can do indoors to get shit calmed down.
>>
No. 575105 ID: 5eea01

Oh dear, that looks like a worryingly short barrel for a shotgun. Means lots of scatter. This guy doesn't seem particularly discriminating about his targets.
>>
No. 575129 ID: df3001

Shit's about to get Deus Ex. Nate from this point on keep an eye open for ANYTHING,even if you don't think it's real
>>
No. 575130 ID: 4a20fa

>>575067
oh god it's Richard Stallman

run
>>
No. 575162 ID: 0b90a3
File 140064091869.png - (186.65KB , 600x600 , 1-31.png )
575162

>Ask Morgan about open carry gun laws, if he asks why just mention the intense looking guy with the shotgun. Check your cellphone for a signal in case you need to call the cops.

Nate
"Shouldn't you call the cops?"

Morgan
>"Already called them. We're in an open carry state though; he's not on company property and hasn't explicitly threatened anyone, so there isn't a lot they can do. Still, they said that they'd come by, talk to him and be in the area."

>Ask the guard what you're supposed to do, then.

Nate
"So what should I do?"

Morgan
>"You remember those active shooter drills they did a couple months ago?"

Nate
"Yeah, that's a code silver right?"

Morgan
>"Yeah: stay down, lock yourself and others somewhere safe, wait for the all clear. Other than that, don't be a hero unless you have to."

He smiles at the look of panic that you give him.

>"Relax, man. He's not getting past me. Just get in there and help clean all this mess up."
>>
No. 575163 ID: 0b90a3
File 140064092301.png - (149.57KB , 600x784 , 1-32.png )
575163

The barrier in front of you raises and you drive into the Apex Communications compound. After a quick browse of the parking lot, you find a spot for your diminutive car and park.

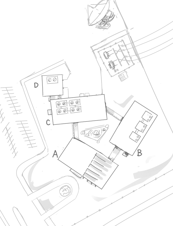
The compound is separated into several buildings. Before doing anything, you should probably clock in on the first floor of the Administration building (A). Most of your work gets done in a clean room on the third floor of the fabrication building (C) or in the Assembly building (D) which requires special clearance. You also have an office in admin and your department usually holds a brief meeting there every morning.

Hiro is a programmer and engineer in the communications building (B), which you have limited access to, but have worked with him there from time to time. However, if he's has been up all night working, as you suspect he has, you may be able to find him at the cafe on the first floor of A.
>>
No. 575165 ID: 2bfcdf

>>575163
Clock in at A and see if you can find Hiro there as well.
>>
No. 575168 ID: fe8b1a

>>575162

=( I don't want adorable blue lizard guy to die.
>>
No. 575173 ID: 9a281a

Go to A, so you can clock in and check for Hiro. Admin will likely also have the front office, and other people passing through to clock in and stuff. So even if he's not there, there should be enough people about and talking that we might get something of a better idea what's going on.
>>
No. 575256 ID: 5eea01

Yeah, best to check in and try to get a handle on what's going on. Also unconsciously fret over Morgan's safety.
>>
No. 575400 ID: 0b90a3
File 140080558675.png - (108.06KB , 600x499 , 1-33.png )
575400

>Clock in at A and see if you can find Hiro there as well.

You head for the administration building and start your day by clocking in, narrowly avoiding a write up from HR.

Moments later Diego dashes up to the hand scanner and breathes a sigh of relief when he see's the time. He works on the floor below you fabricating the framework of the satellites, electroplating, printing circuit boards and assembling the outer covering. A lot of what he does gets passed along to you to finish in the clean room.

You exchange a wave with him.

Diego
>"See you at the meeting this morning?"

Nate
"I gotta go talk to Hiro first, let them know I'm here though."
>>
No. 575401 ID: 0b90a3
File 140080559806.png - (152.52KB , 800x465 , 1-34.png )
575401

You take a deep breath and cross the lobby to check the Cafe. Sure enough, Hiro is waiting in line with a mug in his hand and the slightly concussed look of someone who was called in to pull an all-nighter. Around him the early morning caffeine junkies are muttering worriedly to each other; the air buzzes and clicks as various invertebrates flutter, scuttle and zip through the dining area.
>>
No. 575402 ID: 2bfcdf

Did you forget your mug in the car?

Go talk to him, find out what's up.
>>
No. 575413 ID: ca0da5

>>575401
What in th--Does Hiro have urchins rather than insects? That's a bit unusual. Unless that's a part of is actual attire, in which case it's very unusual.
>>
No. 575419 ID: 2000fd

>>575413
Urchins are like sea insects.

I think he's just going for invertebrates, though.
>>
No. 575420 ID: a36601

The bugs seem to be a bit related to the type of person they are,(or how you perceive them at least) who are the butterflies coming from? Talk to Hiro and offer to buy him his coffee; with how rough he looks he probably deserves it.
>>
No. 575509 ID: ddcac0

>>575413
Perhaps because he's a dolphin dude, hence his 'bugs' would be those of an aquatic variety?
>>
No. 575528 ID: 0b90a3
File 140088499959.png - (96.11KB , 600x518 , 1-35.png )
575528

> Talk to Hiro and offer to buy him his coffee; with how rough he looks he probably deserves it.

Nate
"Hiro, hey, let me get that for you."

Hiro
>"Mornin' Nate. You get that e-mail?"

Nate
"Yeah, what's going on? They mentioned Apex on the news earlier."

Hiro
>"Sheeeeeeeit. Tell you in a minute. Coffee first."
>>
No. 575529 ID: 0b90a3
File 140088500612.png - (175.24KB , 700x558 , 1-36.png )
575529

Heather
>"Hey guys, what can we get you?"

Looks like Heather's working at the cafe today. Heather is one of those few people you've never seen with any creatures on her. She's pretty bubbly, which helps when you want to forget all the crazy bullshit you see every day.

Her co-worker, on the other hand, hardly ever talks. You're not sure what his name is, so mentally you just refer to him as "that guy" or "the kid". Makes some damn good coffee though.

Hiro
>"I'm just gonna get a double cappuccino, what about you Nate?"
>>
No. 575531 ID: 5eea01

Cappucino sounds great about now.
>>
No. 575540 ID: 53ba34

don't swat at them or grab fast but try grabbing a bug and putting it on heather when you get your stuff.
>>
No. 575543 ID: 2bfcdf

>>575529
Are the infestations always different? I mean, have you ever seen someone with the same bugs as someone else? Just get a cappuccino for now.

Have you tried flirting with Heather?
>>
No. 575554 ID: 4a20fa

>>575529
Just get some form of coffee. Trying to reach for her across a counter is not something you're going to manage to do subtly.
>>
No. 575556 ID: 5eea01

The fuck is wrong with you people, you're just here for your goddamn morning coffee. GIT CAFFEINATED, SCRUB.
>>
No. 575572 ID: 9a281a

Huh. She certainly doesn't match the earlier description of suspicious agents. I'm not sure our idea of a connection between them and non-infestation works. Although we could use more data.

...maybe she has something that you just can't see? I mean, if you hallucinated something like bot-flies or a tapeworm, they'd be inside the body. Although the realness of a hallucination you can't see is perhaps a little too meta considering your existing grip on reality.

>>575556
Yeah, a coffee. Nothing fancy. Maybe grab a bagel or a scone or something if you didn't eat earlier.
>>
No. 575579 ID: ca0da5

>>575572
Could also be water bears (Tardigrades). They're tiny, and only "wake up" when exposed to moisture, particularly pure water. At a standard length of less than a millimeter, you'd pretty much need a magnifying glass to see them when they're awake, and a microscope to see them when they're hibernating.

Of course, she could also be a sleeper agent, appearing to be on your side while secretly leaking bits of intel to the agents Lester mentioned. Assuming the agents are real, of course.
>>
No. 575878 ID: 0b90a3
File 140106111117.png - (122.40KB , 600x411 , 1-37.png )
575878

>Have you tried flirting with Heather?
Flirting... really isn't your strong suit; its something that takes self confidence and social skills. Heather will flirt with people, yourself included, from time to time but that's just her way of being friendly. The one or two times you tried to flirt back have been extremely groan worthy and left you feeling incredibly embarrassed later. For the most part, just being able to talk to someone like a normal person is enough for you.

>...maybe she has something that you just can't see? I mean, if you hallucinated something like bot-flies or a tapeworm, they'd be inside the body. Although the realness of a hallucination you can't see is perhaps a little too meta considering your existing grip on reality.

It is possible that she has some kind of creatures on her that you haven't seen before, but technically everyone has a whole ecosystem of tiny organisms living on or inside them. You try not to think about that too much; its the kind of thing that makes you feel anxious.

Nate
"Yeah Cappuccino sounds good, let's go with that."

"The kid" nods, takes your mugs and wordlessly gets to work. He turns around to steam some milk and that thing on his back gives you a glare.

Heather
>"So what's going on you guys? Everybody's looking worried today but they won't say anything about it."

Hiro
>"Its just some bullshit with a bunch of nerds and their pretend money: they're pissed because our system that makes internet money for them is down. Now they're all trying to threaten us, despite the fact that they've been making shitloads of cash off us for over a year now."

Heather
>"Oh, well that's dumb. Should we be worried?"

Hiro
>"Probably not, most of them just like to talk shit. Once we get everything back up and running they'll pretend that none of this ever happened."

The Kid hands your mugs back to you full of piping hot espresso and foam.

Kid
>"that'llbesixseventyfive."

You pay for the drinks, drop a buck in the tip jar and go sit down at a table.
>>
No. 575879 ID: 0b90a3
File 140106111608.png - (130.47KB , 600x459 , 1-38.png )
575879

Nate
"So is it true then? Midas is down?"

Hiro
>"To tell you the truth, Midas is only part of the problem; apparently it received a string of information from somewhere and sent it straight through to Cobalt. Now, Cobalt's stopped responding to our input and is working on whatever Midas sent it. I was up all night working on a framework just to get the damn thing to talk to me. "

Your eyebrows shoot up at the mention of Cobalt.

Several years ago Hiro and Diego were working at an experimental tech company in Detroit that was starting to fall apart. When checks stopped coming and the CEO vanished, they took what they were working on and approached Apex with the task of finishing it. You aren't cleared to work directly with it but Hiro has implied that the project, named Cobalt, is a working quantum computer.

Quantum computers are hard to work with but the raw processing power can easily crunch through the enormous calculations required for generating, processing, and transferring cryptocurrency. The Midas satellite on the other hand, was built to pump all of those absurdly complex calculations directly into Cobalt while at the same time remaining absolutely secure. The company uses Midas to essentially lease out Cobalt's absurd computing power to a number of groups; the most recent being the crypto-currency advocates.

Early on, they were able to generate their own currencies with home built rigs. As the calculations required to unlock new coins became ever more complex, more processing power was required until the only economical way to mine was to borrow a mining system from someone else. They've always been frustrated by this corporate intrusion into their famously self-reliant economy, but hey, "rules of the free market" and all that.
>>
No. 575884 ID: 9a281a

Oh, geeze. So we've been hijacked, then? That's... absurdly bad and complicated. No one outside should know enough about your systems to have gotten a signal through Midas to get Cobalt to behave differently.

...so what's it saying now that you got a framework in place? (And how are we supposed to help if you aren't even cleared to work where the real problem is? Does he want you starting on the other end- how or what got through Midas?).
>>
No. 575886 ID: 57a559

>>575879
Well, hopefully it's cool whatever Cobalt's working on now. I mean, what if it's more profitable than the cryptocurrency bullshit we're doing now? It's apparently large enough to be complex as the economics of cryptocurrency, which I don't understand at all but don't really need to if a fancy computer does it all.

Unless it's AI programming that Midas sent and it's going to make Cobalt sentient. Quantum Computers are the ones powerful enough to become sentient, right? Or at least handle to computations of sentience?
I know it sounds stupid to mention something like that to Hiro, who probably understands Cobalt more than you, but anything sent to Cobalt may become a huge threat if we don't know what it is, up to and including Skynet, if it's as powerful as advertised. Cobalt sounds like it might even be able to decrypt advanced encryption, like nuclear codes, for example. Just make sure Cobalt can't actually output anything meaningful until what was sent is identified. I think you should totally ask Hiro about Cobalt Skynet though, just so he can confirm it's impossible.
>>
No. 575897 ID: e3aff6

Ok, so lets consider or ask about the first two things you consider when your megacomputer does mysterious things: What modes of conveying output does it have, and what overrides do you have?
I suppose they can't simply cut the power for fear of damaging it, but physically disabling its connections to other part of the system or the net would avoid damaging the important bits and should keep it from causing much trouble unless it is a wizard. (If the computer is indeed a wizard, retreat to the nearest bomb shelter for the next few hundred years.)
>>
No. 575901 ID: 2bfcdf

>>575879
This... this is related to the blue-shift isn't it? We have to investigate that as soon as possible. Like, right now. Excuse yourself.
>>
No. 575905 ID: dc4b80

You need to shut it down now. Someone sent it a program to work on and it could be stealing every bit of data you have right now. At the very least you need to cut it off from all outside lines. And not just turn off a few routers I mean unplug everything.

Of course they won't do that and something horrible will happen. But at least get the idea out there so you can say I told you so when horrible things go down.
>>
No. 575906 ID: 2bfcdf

Guys no, Midas sent Cobalt some data to analyze and Cobalt has been analyzing it. Hacking a computer via a satellite is ridiculous.
>>
No. 575931 ID: 39e7d2

>>575906
This is probably the closest understanding we can have right now. The problem is, whatever Cobalt is analyzing, it took nearly all of its computing power to do so, and as a result it cannot compute our digital coin thingamajigger.
Need I remind you that this is a quantum computer? The amount of data analyzed would be huge. I suspect it exceeds the bandwidth of the Midas-Cobalt comm.

This is very interesting.
>>
No. 575936 ID: d315b1

>>575906
There are three possible explanations I can think of:
>somebody just sent Cobalt a massive program that's taking up all of our processing power and bandwidth
>somebody sent us a corrupted or badly glitched program, now Cobalt is spitting out a stream of garbage
>somebody just sent a program designed to lock us out while they use Cobalt for malicious purposes (perhaps tampering with the bitcoin data)
If it's the first or second scenario, our best bet is to shut down satellite communications while we try to fix Cobalt. If it's the last scenario, then we need to shut it down NOW.
>>
No. 575961 ID: 2f4b71

So the Midas series are essentially relay nodes that appear to be doing the processing themselves, while actually farming out the complex parts to Cobalt. And they communicate directly with Cobalt, rather than just relaying back to a ground station. Presumably to obscure the existence of Cobalt by not having a direct ground-based uplink to it (which anyone with a photograph of the antenna could use to locate Cobalt).
But Cobalt must still be registered with UNOOSA and be tracked by USSPACECOM/NORAD. First thing to check is that Cobalt is actually still in the correct orbit. If the data sent to Cobalt was malicious, and has the sort of low-level access it seems to in order to deny other inputs, sending it a retro-burn would be a sure-fire way to permanently deny service.
>>
No. 576001 ID: 54af1f

>>575936

For a lower key apocalypse, you could be seeing an attempt to disable the cryptocurrency supply in order to drive up the exchange rate of existing cryptocurrency.

Either way you need to make sure it's not stealing data off itself, and figure out what exactly it is doing.

Do we have a copy of whatever program it was sent?

It interests me that the satellite also locked down. Surely they don't have particularly similar operating systems? Does the satellite actually process the data that passes through it?
>>
No. 576053 ID: 0bbf61

In before someones using it to decrypt something truly monstrously complicated, (Message from andromeda?) Digital Fortress style.
-- or theyve already cracked it, but now whatever was inside it was malicious and causing it to act like its processing something monstrous, also Digital Fortress style.

But yeah, immediately recommend disconnecting everything except the power cable.
>>
No. 576083 ID: 0b90a3
File 140115430028.png - (121.12KB , 600x599 , 1-39.png )
576083

>Oh, geeze. So we've been hijacked, then? That's... absurdly bad and complicated. No one outside should know enough about your systems to have gotten a signal through Midas to get Cobalt to behave differently.

Nate
"So what happened? Was Midas hijacked?"

Hiro
>"Shouldn't be possible, the crypto-key for control over Midas is generated by Cobalt itself; it would take decades to crack with any other computer."

Nate
"You realize that's kind of a dumb system, right?: either machine fails and the whole system breaks down."

Hiro
>"Well, I'm sorry. Here, show me another computer with nigh-infinite processing power and I'll get right to work patching it through to make codes for us."

>Unless it's AI programming that Midas sent and it's going to make Cobalt sentient. Quantum Computers are the ones powerful enough to become sentient, right? Cobalt sounds like it might even be able to decrypt advanced encryption, like nuclear codes, for example.

Nate
"What about its output? Is someone using it to crack a bunch of launch codes and send them to a malicious source? Or.. I know how this sounds, but what about some kind of... AI?"

Hiro
>"Well, the good news is that it hasn't been able, or really even tried to send anything yet. All of its output has to go through us and we cut it off from the outside world as soon as we realized it had shit itself."

>"As for an AI... There's only a couple people on earth that know how to get Cobalt to do anything, and even then its fairly simple stuff. The way we've been using it, its basically a glorified adding machine, but only because we're working on how to get it to do anything else. Theoretically it would be able to handle it but our methods of programming for it are in their infancy."

>somebody just sent Cobalt a massive program that's taking up all of our processing power and bandwidth
>somebody sent us a corrupted or badly glitched program, now Cobalt is spitting out a stream of garbage
>somebody just sent a program designed to lock us out while they use Cobalt for malicious purposes (perhaps tampering with the bitcoin data)

Nate
"So, what is it doing now? Is it still processing or is it just dumping out a bunch of nonsense?"

Hiro
>"That's the weird thing. So I got all set up on a secure, isolated server to check on what the hell it was working on and I try talking to it. Normally some kind of malicious program would be asking for permissions and trying to find its way into the server. Instead it gives me shit about an 'integer fault'. Then, it starts counting off a string of numbers... hang on, I have them here.

He fishes around in his pocket and pulls out his phone.
>"1,2,3,5,7,13,15,21,23,27,35,37,45,51,53,57,65,73,75. It starts off with regular primes, then just a bunch of ascending numbers. If this was just something malicious, then whats with the number puzzle? "

Nate
"So, what do you need from me?"

Hiro
>"Welllll.... like you so astutely pointed out..."
He gives you an exhausted glare.
>"...the system has broken down. Since Cobalt generates the crypt-keys and we've lost control of Cobalt; that means we've also lost access to Midas as well. I need your help to get us back in touch with Midas so we can figure out where that information came from. We need to know If its just some black hat douche-bag showing off or some kind of orchestrated attack.
>>
No. 576092 ID: dc4b80

Well time to get cracking then. Take your coffee with you and get to work.

Do you have any mathematicians on staff? They might be able to shed some light on that prime number array. Make sure you get permission to talk about it first though. We can speculate all we want about where this info came from but until you track it down its just guesswork.
>>
No. 576094 ID: ca0da5

>"1,2,3,5,7,13,15,21,23,27,35,37,45,51,53,57,65,73,75. It starts off with regular primes, then just a bunch of ascending numbers. If this was just something malicious, then whats with the number puzzle? "
+1, +1, +2, +2, +6, +2, +6, +2, +4, +8, +2, +8, +6, +2... Yeah okay I'm not seeing a pattern there.

Let's leave figuring out the code to Hiro's team, you should get to work on contacting Midas. Can Midas be "spoken" with like Cobalt can?
>>
No. 576105 ID: 9a281a

Huh. No primes after 13, but they're all still odd. All the deltas are positive, less then ten, and except for the first few, even. Not... seeing a pattern though. Is that it, does it keep going?

>try to get in touch with midas, find out where this came from
Now that, you can hopefully do.
>>
No. 576107 ID: d80674

It could be turning it into a Numbers Station, transmitting a series of numbers that can be decoded by a special one time use codebook.
>>
No. 576108 ID: a36601

According to wolfram alpha it is the primes written in base 8. That's kinda weird. Fits perfect though. (I left out the first couple numbers and it gave them as a possible continuation of it)
>>
No. 576112 ID: e3aff6

With p standing for prime,
1,2,3,5,7,13, 15, 21, 23, 27, 35, 37, 45, 51, 53, 57, 65, 73, 75
initial p bit 3*5, 3*7, p 3*9 5*7 p 5*9 3*17 p 3*19 5*13 p 5*15
Discounting the initial primes, the points consistently have a prime every three numbers, and they fit a pattern that makes sense through 45 (n * increasing odd numbers > n while <10), but after that I can't figure out the progression though it keeps the general format.

Anyway, does Cobalt have a log of use history you can access?
What a realistically simulated mug :V
>>
No. 576113 ID: a36601

>>576108
((sorry if that is kinda cheating by the way, I didn't figure it would just tell me that))
>>
No. 576114 ID: 2bfcdf

>>576083
Whose bug is that? Look around, someone probably walked up.
>>
No. 576117 ID: 2bfcdf

>>576108
In that case the next two numbers in the sequence are 103,107.
>>
No. 576118 ID: 2bfcdf

...maybe that's what the integer fault is. It can't use three-digit numbers?
>>
No. 576120 ID: 2000fd
File 140115877949.jpg - (37.58KB , 640x480 , HNI_0094.jpg )
576120

>>
No. 576122 ID: 9a281a

>>576108
>>576113
Hah. Yup, that works.

And no, that's not cheating. Both characters should have access to wolfram on their phones, anyways. Hiro's just too sleep deprived to have thought of it.

...obvious thing to try is to provide the computer with the next number in the sequence. If it is a puzzle, maybe giving the answer does something.
>>
No. 576174 ID: d0e0a2

Okay, so it looks like the sequence is the first 19 prime numbers written in base 8 (octal.) Continuing the sequence in octal is 103, then 107, which might mean the "integer fault" is that somewhere the system can't handle three digits. But converting the octals to binary and crossing from octal 75 to octal 103 also goes from using six bits to seven. If this was a normal computer you wouldn't need to ask this, but could there be any possibility that Cobalt is choking on that transition to seven bits and throwing an error?

As for Midas, well, if it was built to be as secure as it's made out to be then every way to communicate with it is encrypted with keys generated by Cobalt. Without Cobalt there's no way to get the data we want out of Midas short of sending a rocket with a 'bot up there to interface with it, and that ain't happening any time soon.

However, there might be other sources that could tell us where that data string that bounced off Midas and took over Cobalt came from. A certain three letter intelligence agency almost certainly has been recording all the radio traffic going up to and down from Midas and where it's coming from. Unfortunately they'd never admit to doing that, much less share the data with us, so that's a bust. And it'd be the same for any intelligence agency outside the country, so don't bother going to them. Is there any other organization out there that might have recorded the radio traffic to Midas at that time who'd be more amicable to sharing it?
>>
No. 576228 ID: 57a559

HEY!
Stop scratching.
Bad gizelle.
>>
No. 576231 ID: a28f90

>>576174
>Is there any other organization out there that might have recorded the radio traffic to Midas at that time who'd be more amicable to sharing it?
Try conspiracy theorists or criminal organizations. I bet some independent hackers could have stumbled upon it as well. Maybe there could be some astronomers who picked up stuff by accident?
>>
No. 576289 ID: 0b90a3
File 140124334354.png - (107.08KB , 600x522 , 1-40.png )
576289

>According to wolfram alpha it is the primes written in base 8. That's kinda weird. Fits perfect though.

You think for a minute and come up with a theory. You pull out your phone and plug a few numbers into an online converter.

Nate
"Wait, if you work with a base 8 number system then those are primes, all the way up to our number 61."

Hiro
>"Are they? I guess I was too exhausted to realize. Okay, so suddenly its running on octal, that's...weird? I guess that must be why we were having trouble connecting to it; from its point of view, we're speaking complete gibberish. I wonder if changing the system over to base 8 would help. Converting the whole thing from hex to octal is going to be a pain in the ass though."

>"Anyway, here's what I was thinking: we make another satellite."

Nate
"Wait...What?"

Hiro
>"I mean, not a real one. Midas has a transponder in it that we hooked up to Cobalt in order to synch them up. What we do is make a fake transponder, synch it with Cobalt, and then hook that up to a computer. We should be able to use it to trick Cobalt into thinking that we're another Midas satellite so that we can send it commands. Hopefully we can convince Cobalt to go back to base 10 and tell us what the hell is going on."
>>
No. 576290 ID: 0b90a3
File 140124334868.png - (98.46KB , 600x462 , 1-41.png )
576290

Hiro
>"That's what I need you for. You put together Midas's communications array. you should be able to-"

>Stop scratching!

Gah! Damnit!

>Whose bug is that? Look around, someone probably walked up.

What bug? Where?

Hiro
>"Hey, earth to Nathan, you listening?"
>>
No. 576291 ID: 2bfcdf

>>576290
Uh. Bug in your coffee. Stare at it, don't drink any more. Maybe get a fresh cup, and use a lid from now on.

Tell him yeah you're listening, go on.
>>
No. 576309 ID: 363ecd

>>576291
Yup, this.

It was some kind of blue bottomed fly, I think, if you've got all your coworker's bugs memorized.
>>
No. 576317 ID: ca0da5

>>576309
Uh, I don't think the fly belonged to somebody if it actually made a splash. That's the first instance of them actually causing something to move that we've seen.

Glare at your mug if you need to, but make sure you're paying attention to Hiro and that he knows you are.
>>
No. 576322 ID: dbc87c

"Sorry, got distracted erm, stopping myself...And a bug got into my coffee just now."
The less it's minded, the less it actually affects you, it seems.
>>
No. 576341 ID: e31ca1

Look, it's not important. Just don't drink any more coffee, you're not tired, right?
>>
No. 576346 ID: 0bbf61

Please, please don't panic about the coffeebug situation.

Seems like a good plan; lets get to it.

Out of curiosity, what are you infested with?
>>
No. 576356 ID: ca0da5

>>576346
I'd guess lice, given his tendencies to scratch.
>>
No. 576451 ID: 0b90a3
File 140140942927.png - (120.27KB , 700x334 , 1-42.png )
576451

>Uh. Bug in your coffee. Stare at it, don't drink any more. Maybe get a fresh cup, and use a lid from now on.Tell him yeah you're listening, go on.

Nate
"Uh.. yeah, yeah. Sorry... distracted for a minute."

You look into your cappuccino, your stomach turns at the sight of the tiny creature struggling to escape the foam.

Hiro
>"Something wrong with your coffee?"

>Look, it's not important. Just don't drink any more coffee, you're not tired, right?

Nate
"No, I Just- er I don't think I'm thirsty anymore."

Hiro wordlessly reaches across the table, takes your mug and empties it into his own.
>>
No. 576452 ID: 0b90a3
File 140140943311.png - (115.74KB , 700x336 , 1-43.png )
576452

He knocks back the cappuccino, and you try not to look too disgusted, unsure if it was even real or not. Hiro clearly doesn't care one way or the other: he's always been the master of not giving a shit
Nate
"So... You want me to make a new transponder for you?"

Hiro
>"Yeah, Kim should be able to get you a copy of the schematic we use, its kept in secure file storage for obvious reasons. Diego will probably be able to help you with some of the parts you'll need; it doesn't have to be fancy, as long as we can hook it up to something."
>>
No. 576453 ID: 2bfcdf

>>576452
Alright let's get to work. You can get more coffee later if you need it.
>>
No. 576481 ID: 5b596d

>>576452

everything in this pic is great.....pinky up! XD

off to work you go
>>
No. 576483 ID: b9d767

>AEIOU
>JOHN MADDEN
Are those coffee mugs what I think they are?
>>
No. 576484 ID: 363ecd

>>576452
Alright. I'll see what we can get set up. Hopefully we can get this thing talking, soon.
>>
No. 576486 ID: 95170a

I'm now wondering how he wears a t-shirt, I mean how does he get his head in?

Also we really need to figure out where this signal originated.
>>
No. 576492 ID: efed8b

I like this guy, let's head off.
>>
No. 576518 ID: d0e0a2

...Er... Ah, well. Maybe it's for the best Hiro took your cappuccino; The caffeine might have aggravated your anxiety issues. In fact, perhaps you should skip the caffeine for now in case you end up having to stay late, that way it'll be more effective then than if you'd been having it all day.

Okay, while you're eager to get this transponder knocked together, don't you have a morning department meeting to attend? You should go to it since Diego will be there, and possibly Kim, and they're not going to be able to do what you need them to do until they're out of the meeting anyway. Then you can talk to them both afterwards and tell them what you're looking to do.

However, if you know Kim isn't going to be at the meeting then you should phone her (or him) while you're on the way to the meeting and ask that the schematics for the Midas 18 transponder be pulled right away so they're immediately ready for you to sign out when you arrive.
>>
No. 576644 ID: 0b90a3
File 140156742962.png - (89.67KB , 600x385 , 1-44.png )
576644

>Alright let's get to work. You can get more coffee later if you need it.

You take your mug back.

Nate
"Right, I'll go get started. Good luck with the coding, Hiro."

He groans in anticipation of another looooong day. You take that as your cue to leave and wave goodbye to the baristas.

>Are those coffee mugs what I think they are?
Confirmed for NERD.
>>
No. 576645 ID: 0b90a3
File 140156743601.png - (113.25KB , 700x468 , 1-45.png )
576645

Okay, while you're eager to get this transponder knocked together, don't you have a morning department meeting to attend? You should go to it since Diego will be there, and possibly Kim, and they're not going to be able to do what you need them to do until they're out of the meeting anyway. Then you can talk to them both afterwards and tell them what you're looking to do.

You head upstairs only to find that the meeting has already finished and most of your co-workers have dispersed to their various tasks.

Nate
"Aw, crap."

You turn around to go find Kim and very nearly bump into the head of your department, Doug.

Doug
>"Heyyyy Nathan, glad you make it today. Too bad you missed the meeting this morning, I wasn't sure if you're aware about last night."
>>
No. 576646 ID: 363ecd

>Too bad you missed the meeting this morning, I wasn't sure if you're aware about last night
Hiro filled me in, unless there's another crisis you're talking about.
>>
No. 576647 ID: 2bfcdf

>>576645
Is he lacking an infestation as well?

...don't tell him about the base 8 thing.
>>
No. 576649 ID: 57a559

>>576645
Huh, nothing on this person either.
Weird.
>>
No. 576650 ID: 3921cd

>>576645
Best thing to do is focus on the task at hand. Tell him the things you know, and your idea for a solution. Hopefully he's more interested in getting everyone on task than chewing you out for missing the meeting.
>>
No. 576652 ID: 57a559

>>576647
You know, Nate, trusting people that are infested but liking the non-infested people more is going to be confusing as hell.
Like, if all the non-infested people are actually spies, that means Heather is a spy too. Or, at least, all of these people have connections in some way. It's weird. We gotta figure out if infestation actually means something to your mindset, what your subconscious is trying to tell you.

Is your therapist infested?

You know, something about Doug makes me think he's a creep. It's probably just the fact he speaks like Lumberg from Office Space. Then there's the other creepy non-infested guy with the gun outside. Lester CAN'T be right, right?
>>
No. 576658 ID: 5eea01

Have you considered that if the infestation or lack thereof really does indicate which people are spies (as brought up by a crazy hobo-looking guy), how do you know whether the infestation is a good or bad thing? Perhaps they are natural feature of all people living on Earth, and those without are foreign impostors. Hell, maybe it's all actually just completely unconnected. Either way, just tell him Hiro caught you up and then go on to find Kim and Diego.
>>
No. 576666 ID: 9fabea

>>576647
>>576649
we might just not be able to see whatever's on him, barista kid had something on his back - ergo we couldn't see whatever was on him from the front, you feel me?
>>
No. 576696 ID: ca0da5

Infestations might just show a sort of psychological/mental deficiency, y'know. Like Hiro was all prickly, Kid was very maneuverable but silent, Lester always seemed to be dealing with garbage... Heather and Doug could just simply be sane persons, and that's all there is to it.

Whether or not the doctors diagnose it, most individuals do have something going on with their mind, and while an agent would be trained to work around that and seem to have nothing, some people are just naturally well built where the mind is concerned.
>>
No. 576727 ID: 70e713

>>576645
no bugs. then again, you don't have any bugs either. also hiro swallowed a bug, if that's not "bugging" then i don't know what is.
>>
No. 576800 ID: 4a20fa

>>576645
Apologize and go get a summary of what you missed from your teammates.
>>
No. 576808 ID: 0b90a3
File 140167244268.png - (88.47KB , 376x600 , 1-46.png )
576808

Doug is another one of those people you've never seen with any insects, though something about him still makes your skin crawl. He's never deliberately done anything to antagonize or harass you, unlike people at your previous jobs; in fact he's one of the better managers you've ever had. He's just, well, kind of a creep. Honestly, some people just can't help it.

Nate
"Yeah, sorry I'm late. If you're talking about the problem with Midas, Hiro actually sent me an e-mail last night saying he needed to talk to me about it. We met this morning and think we have a way to regain control of the system. His idea is that if I put together a new Satellite transponder, then we can synch it with Cobalt and trick it into thinking we're a new Midas-sat."

Doug
>"Hmmm, have you talked to anyone else about it?"

Nate
"Uh... not yet, why?"

Doug
>"Good, one of the things we went over this morning was how we go forward addressing this issue publicly. The PR department will be handling the fallout, but I just want to make sure everyone is on the same page. I'll make sure you get a copy of our official statement before lunch."

>"Now about this plan, you'd need my authorization before Kim will give you the plans for a transponder. Hmm, I hope you realize how sensitive information on Midas is; we've already clearly had one breach of security, the last thing we need is to compound it. I like the idea though, very novel, shows initiative."

>"We also have sat#20 to finish up in the assembly hangar. I know this is very exciting and strange, but we don't want to fall behind schedule now do we? We also have to face the possibility that there may be security flaws built into our design itself. Once you help Hiro, I'd like for you to take a look at the comm's array we've been working on and give me an assessment by Friday."
>>
No. 576827 ID: 2bfcdf

>>576808
Erm. Is he going to give you authorization? If so then I suppose our next stop is Kim.
>>
No. 576829 ID: 95170a

>He's just, well, kind of a creep.
Maybe its because he never opens his eyes!
>>
No. 576833 ID: ca0da5

>>576827
From the sound of it, he wants us to finish the latest real copy of Midas first. Tell him you'll go work on it, but ask if it would be possible for authorization to go through while you do so. Even if it's only for after you finish up.
>>
No. 577000 ID: 0b90a3
File 140183857487.png - (149.62KB , 600x435 , 1-47.png )
577000

>Erm. Is he going to give you authorization? If so then I suppose our next stop is Kim.

Nate
"So... are you going to give me authorization for the schematics?"

There's a pause that goes on for a bit too long, and then a grin a bit too wide.
>"Sure, sure. I'll let Kim know you're coming. Just make sure you get them back to her by the end of the day. I don't think I need to tell you what kind of damage someone could do with one of those transponders."

He claps you on the back, the sudden contact causes you to jump as if you were just shocked.
>"Good to see you already hard at work on this little snafu. I'm sure you'll have this all sorted out in no time."
>>
No. 577001 ID: 0b90a3
File 140183858479.png - (84.12KB , 600x444 , 1-48.png )
577001

You take your leave of Doug and head upstairs.
You get to Kim's desk and she's on the phone, presumably with Doug.
>"Okay, sure. Looks like he's here now. Okay, thanks, bye."

She hangs up and sighs.
>"Morning Nathan. That was just Doug; I dunno how you can stand working with him."
>>
No. 577003 ID: 53ba34

huh, spiders...
you ever see the bugs fight eachother?
>>
No. 577004 ID: 2bfcdf

>>577001
Spider-lady, huh? Tell her it is pretty difficult, but this job is very important to you.
>>
No. 577017 ID: 57a559

Doug's nice, a little touchy feely, but nice. Why Kim? We haven't noticed anything. I mean, yeah, he talks like that manager Lumberg guy from Office Space, but he doesn't act like him.
You guys DO have Office Space in your world right?
The world wouldn't be a good place if you don't have any Mike Judge media.
>>
No. 577223 ID: c7a241

Almost a relief to see someone covered in bugs. Makes her seem normal, after Doug.

Morning, Kim.

>I dunno how you can stand working with him
Well, you do what you gotta do.
>>
No. 577234 ID: 2eb028

>>576808
>"Hmmm, have you talked to anyone else about it?"
for future reference, the only valid answer to that question is "well, only to my dead man switch info dump".
saying "no" is saying "if you kill me now no one else will know this secret".
>>
No. 577248 ID: ca0da5

>>577234
Anybody who came from a meeting entirely about the situation is probably safe to say "no" to though. No need to make them upset with you. After all, "Dead man info switch" implies "Yes, everybody will know about it if I'm killed by anything, even a person dedicated to learning all the information enough to kill me for it."
>>
No. 577292 ID: 0b90a3
File 140201873581.png - (124.41KB , 700x485 , 1-49.png )
577292

>you ever see the bugs fight each other?
Can't say you've ever noticed them directly interacting, mostly they just swarm around.

>Tell her it is pretty difficult, but this job is very important to you.

Nate
"Its tough but this job is really important to me. The only real problem is that he's kind of touchy, but I've worked with worse. Why?"

Mel
>"He's... one of those guys that's just used to getting his way, you know? After a while, its hard to deal with."

Nate
"Ah, well I guess its different because he's my boss."

Kim
>"Hmm, well just don't let him think he can do anything he wants to. Hey, you get that article I sent you last night?"

Kim is a pretty big space NERD herself, possibly a bigger than you. She follows a lot of the big, dumb, space nerd arguments online and likes to send you articles about all the weird and amazing things people discover in space. She's also responsible for a lot of the design work that goes on around here.

Nate
"I saw it, but haven't had a chance to read it yet, sounded bizarre though. What did they find?"

Kim
>"Um, well... They're not sure. It looks like a huge chunk of the Andromeda galaxy suddenly accelerated towards us but they can't explain why. One theory they put forward is that there's something between us and Andromeda that is making it look like its blue-shifted, but somehow we can't see it."
>>
No. 577295 ID: 53ba34

tell her about your zen vision. black hole maybe?
>>
No. 577298 ID: f28bf6

Maybe it's just me but for some reason I feel like I can't rule out the idea of aliens, silly as that might sound.

Buuut onto business- For whatever reason Cobalt got flipped over to Octal from Hex, soo the idea was I'd make a new transponder so that we could basically 'fake' being Midas and communicate with Cobalt. I've come to you for a copy of the schematics.
>>
No. 577324 ID: 321d85

>>577295
Nnnnoo, maybe don't tell her about your zen vision. I can't easily imagine that being met with anything but skepticism. You could ask, like, "Would a black hole do that?" or something, or otherwise speculate on the cause.

>>577298
>to octal from hex
... ...wait a minute, computers don't actually operate in hex; they operate exclusively in binary - printing stuff in octal or decimal or hex is only done for our benefit. Though I suppose instructions and memory are typically divided into fixed-length groups of bits (like how you do memory access by the address of a byte). Mmmmaybe it's a Cobalt thing, though.

Sorry if I'm poking the Man Behind the Curtain.
>>
No. 577328 ID: ca0da5

>>577298
Do NOT tell her about the idea you and Hiro came up with. Doug doesn't want you mentioning that to anybody. If he wants her to know about it, he'd have told her in that call just now.

Something vague like, "Hiro and I came up with a potential solution to the problem, but we'll need the blueprints to see it through." If she asks you why, look at her like she's crazy and respond, "I know you don't exactly see eye-to-eye with him, but if Doug didn't clue you in then I don't think we should discuss it.
>>
No. 577330 ID: 7f9410

It wasn't hex before. It was base 10.

See if you can spare some time to look over the article while you work.
>>
No. 577347 ID: 321d85

>>577328
I don't think we told Doug.
>>
No. 577362 ID: 2f4b71

>>577324
>... ...wait a minute, computers don't actually operate in hex; they operate exclusively in binary - printing stuff in octal or decimal or hex is only done for our benefit. Though I suppose instructions and memory are typically divided into fixed-length groups of bits (like how you do memory access by the address of a byte). Mmmmaybe it's a Cobalt thing, though.

Number base (and word length; who knows, Cobalt bay be an 8-bit entangled quantum computer) is still important for actually getting the correct numbers into and results out of calculations. Some parallelised bitwise logic (and even some specialised processors) also need inputs in a certain base.
>>
No. 577369 ID: 2eb028

>>577292
wait, is he sexually harassing her? it sounds like he's used to get things, and people, his way. ask her, be a friend to someone who maybe has no one else to talk to about this.
>>
No. 577660 ID: 0b90a3
File 140219452424.png - (134.47KB , 700x487 , 1-50.png )
577660

>Nnnnoo, maybe don't tell her about your zen vision. I can't easily imagine that being met with anything but skepticism. You could ask, like, "Would a black hole do that?" or something, or otherwise speculate on the cause.

Nate
"Something we can't see? Do you think it could be like a black hole? Like a super-massive one?"

Kim
>"Maybe, they picked up evidence of gravitational lensing at least. But... the scale of the area effected was so enormous, it still should have taken hundreds if not thousands of years to see. Its like someone clicked and dragged a bundle of stars the size of the Small Magellanic Cloud in our direction. There's a bunch of people online arguing about what could possibly have done it."

Nate
"Heh, maybe aliens did it."

She shrugs
>"Wouldn't be the first person to suggest it. Whatever it was, I doubt we'll get an answer anytime soon."

Nate
"Yeah, I guess..."
You kind of trail off, thinking about the vision you had earlier. Not a lot of people here know about your condition, so you're pretty self conscious about appearing normal. Best not to tell her.

>Wait, is he sexually harassing her? it sounds like he's used to get things, and people, his way. ask her, be a friend to someone who maybe has no one else to talk to about this.

Nate
"About Doug... he isn't, like, harassing you or anything like that?"

She blushes and her spiders start to scuttle in a panic.
>"Oh! No, I... no, I didn't mean it like that. Um, here, Doug said you needed transponder schematics, right?"

Nate
"You can tell me you know; I want to help if he is."

Kim
>"No... we...okay, we've been kind of seeing each other for a while. I don't know... he just came up one day and asked if I wanted to do something together: it was weird, like no pressure, no pick up lines or anything. And... he's been pretty nice, nicer than you'd think, but sometimes I just don't know about him. Like, something's...off, Like hes hiding something."

>"Listen, you don't need to tell anyone, okay? Its nothing."
>>
No. 577664 ID: 321d85

"Oh, of course, I just thought I'd make sure."

Also, upon closer inspection, I find it of interesting note that her spiders apparently reacted to her feelings.

If he wasn't already set in the belief that the insects are hallucinations, I'd totally be giving him like 7 experiments to try to determine their reality. If it comes into question at any point, I will probably actually do so.
>>
No. 577666 ID: c7a241

>She blushes and her spiders start to scuttle in a panic.
Huh, wait, the bugs respond with people's emotional state? Which means... your brain might be latching onto emotional tells, and incorporating them into your hallucinations. Possibly, the bugs might react to or show things you may not even be consciously aware you're seeing.

Huh. That could be... useful, actually. As unsettling as the bugs are for you, if you pay attention to them, you might be able to read people better than you could otherwise. Something to look out for.

...have you ever tried playing poker, or other games where hidden information is key?

>seeing him
Wow, uh, and she wonders how you put up with him?

Sounds like it's nothing for us to worry about, for now. Thank her for the drawings, and reassure her a little. Yeah, he can be kind of weird, at times.
>>
No. 577672 ID: 7f9410

>>577660
Wait, how do we know it didn't take hundreds or thousands of years to see? How do we know it just happened?

Ask her if she knows anything about the lady in the cafeteria. (You know, the bugless one)
>>
No. 577705 ID: ca0da5

>>577672
>Ask her if she knows anything about the lady in the cafeteria.
Kind of a sharp change in subject, no?

Yeah, Doug might be hiding something, but let her know that if that's all she's worried about, you've got no reason to carry this forward--with her or to somebody else. >>577666
>Huh. That could be... useful, actually. As unsettling as the bugs are for you, if you pay attention to them, you might be able to read people better than you could otherwise. Something to look out for.
Probably, you only even caught on to push for this because of this little trick.
>>
No. 577760 ID: 7f9410

>>577705
It's not a sharp change in subject. She was just talking about dating an employee.
>>
No. 577762 ID: 57a559

>>577660
Every dude has something a little off about them. But then again, intuition is a powerful thing (especially in the fictional world) and we suppose it isn't our business at that point.

He is a superior or coworker though and I personally think a date that might be a bad career move for the both of you. If it doesn't work out, it can make things very bad for you and him around work, and same if it DOES work out in some ways. Then the gossip and ugh. Just bad mojo.
Really, coworkers engaging in a relationship with one another typically only works out when they're already successfully married couples. Which is typically the case with scientists, who probably met one another when working on their degrees in college.
>>
No. 577811 ID: 2eb028

>>577660
well, it is an employer-employee thing. kinda creepy on its own, what with her freedom to refuse his advances being restricted because he can fire her.
anyhow, of course you'd never tell she wants to keep it a secret.
>>
No. 577861 ID: 196d1b

Ok, no matter what you say, you've got to admit that it's adorable how responsive the spiders were to her embarrassment. Also, while this might just be the power of suggestion, I can't help but recall what your crazy neighbor said as we hear that this guy acts like he's hiding something.
>>
No. 577889 ID: ca0da5

>>577811
From what I got, Doug is more a coworker of hers than her superior. In terms of family, that would make her an aunt to Nate, rather than a sister, cousin, or mother, whereas Doug is a direct superior, as in a father. (That's just a metaphor, I'm not saying they actually are family, that would definitely make it awkward) Dating an equal-level/unrelated-field coworker is nowhere near as awkward as dating a superior.
>>
No. 577935 ID: 0b90a3
File 140236118970.png - (141.84KB , 800x449 , 1-51.png )
577935

>Wait, how do we know it didn't take hundreds or thousands of years to see? How do we know it just happened?

Well, technically whatever happened, did so roughly 2.5 million light years ago and the light from it is only reaching us now. But whatever it was, it affected an incredibly vast area of space all at once. Theoretically, a strong gravitational source moving through the area would to it, but the affect would propogate outwards at the speed of light and not become visible in one night. In order for it to affect an area that large, you would have to...suddenly pull a gravity well 7,000 light years across literally out of nowhere.

>Wow, uh, and she wonders how you put up with him?
Nate
"Just, curious, but how do you put up with him? I have to deal with Doug on a daily basis, I can't really imagine... well."

Kim unlocks the door and steps into the secure stacks. Inside are shelves of bound technical manuals, tubes of blueprints, a computer and a couple of servers whirring away next to a large plotter.

>"Well, that's just it, you see him every day. We've only gone out a couple times, sometimes only once every couple months. And when we do see each other, he's pretty sweet, if a little weird. Its just... he always gets what he wants, and sometimes you don't even realize it until later, it can be so damn aggravating."

Nate
"Hah, yeah... I bet."

>Yeah, Doug might be hiding something, but let her know that if that's all she's worried about, you've got no reason to carry this forward--with her or to somebody else.

>Every dude has something a little off about them. But then again, intuition is a powerful thing (especially in the fictional world) and we suppose it isn't our business at that point.

Something is making your skin prickle and your stomach feels knotted up.
"If you think there's something off about him, you should trust your intuition; not that its any of my business. I don't want to see you get hurt, but I won't tell anyone if that's what you want."

She picks through the shelves and hands you a binder, modestly sized as far as these things go.
>"I'd appreciate it, Nate. Here, I need it back before you leave."

>Huh, wait, the bugs respond with people's emotional state?
Yeah, in fact...
Shit, you might want to get out of here.
>>
No. 577936 ID: 7f9410

>>577935
Then rush off, after brushing the wasps away.

Who do the wasps belong to?
>>
No. 577946 ID: 53ba34

mentally command wasps to settle down.
>>
No. 577948 ID: 57a559

>>577935
Is your neighbor nearby? Does he work here? Or are non-unique infestations possible? Then again, this could be a different species of bee/wasp thing so some other person's infected with Asian Wasps or some shit. But the thing is you've also come up with fictional bugs if that coffee guy with the squid thing is anything to judge by.
Or maybe your subconscious is trying to tell you something about your neighbor. Are these the same bees as before, the one that went in your coffee?
Are you being followed by a guy infested with Nicholas Cage's greatest line's subject?
>>
No. 577955 ID: 53ba34

>>577948
neighbor is bees, these are clearly THE wasps.
>>
No. 577976 ID: c7a241

>Who do the wasps belong to?
Yeah, have you seen them before?

>Shit, you might want to get out of here.
Well, then say your goodbyes and thank yous without just rushing out of here like a crazy(er) person.
>>
No. 577986 ID: 707a11

Those are the titular wasps, as in, A Conspiracy of. I'm pretty sure they're ours. Make your hasty excuses, grab the book if you can do so without taking too much time, and get to your special place ASAP.
>>
No. 578112 ID: 0b90a3
File 140245628674.png - (98.75KB , 600x505 , 1-52.png )
578112

>Then rush off, after brushing the wasps away.

Nate
"No problem, I better get going. See you later."

>Yeah, have you seen them before?

Unfortunately... yes, you have...

ZZZZZzzzZZzzzZZZZZ
>>
No. 578113 ID: 0b90a3
File 140245629256.png - (178.01KB , 700x438 , 1-53.png )
578113

You back out of the room and sweep the insects off of your shoulder, but more are swarming in from somewhere.

The swarm starts to envelop you, overwhelm you.
ZZZzzzzzzclosezzzzZZZ

You mutter under your breath, trying to remain calm.
"No, please, stop-"

ZZzzzZZNozzzzONezzzclosezzzzyouzzzNEverrrzzzCLose

"Shut up, SHUT UP."

ZZzzzzzZZZNeverrrrrzZAszzclozezzzaszzzZzzzZZZUssszzzzz


"I'm NOT hearing this, FUCKING shut up!"

>get to your special place ASAP.
Need to concentrate, need to get out of here...
>>
No. 578114 ID: ac14c0

>>578113
"no one is close to you, never close, never as close as us"
Seems like this attack has been brought on by a reminder that you've never been in a relationship with anyone.

Yes, I would say the insects/whatever are definitely just a hallucination based upon an intuitive sense of other peoples' emotions and character.

Have a seat somewhere out of the way and meditate. Clear your head. Don't look at Andromeda this time.
>>
No. 578115 ID: dc4b80

Take some deep breaths and try to ignore the wasps.

Do they pull this shit often? If most everyone has a insect around them are these yours or someone Else's? Also if these talk to you can the other insects talk?

I know they are creepy but if you can talk to them maybe you can get some information? Going to your safe spot might get rid of them but sometimes confronting something is better than hiding from it.
>>
No. 578120 ID: ca0da5

Get out, sit down, close your eyes. These wasps... They're not... Not the enemy. Yes, that's it.

They are speaking to you. You are in a very thick apiarist suit. Standing in a net cage. They are outside the net, and behind you is a portal to the Lagrange. If you need to run, enter it. It will close behind you, leaving you alone. But if you can muster up the courage, first, see if they have a message for you.

Do not force yourself. If you cannot stand behind the net in protective gear, go to Lagrange 1. They will not be able to follow you there. They cannot. You can breath. They cannot.
>>
No. 578122 ID: 410c24

So... are the wasps your infestation? They sound kind of possessive.
>>
No. 578131 ID: 7513f3

The Wasps are interesting, if you can tell us who you associated with them that would be helpful, but for now concentrate on calming down.
>>
No. 578147 ID: 5f54f5

Jeez, who can say they've got an ex that's a hallucination eh?
I say that because really, those wasps oughta be a good deal less clingy-I mean, everyone's got their bugs, you're just the one guy that notices and cares, shouldn't be messing with their owner if they're gonna say things like 'no one is as close as us, will never be as close as us.'
>>
No. 578387 ID: 289a68

Come on, hear them out. They're trying to talk to you. You'll never get over your fears if you never confront them. Diplomacy is always the best option, even if it's with a hallucination.
>>
No. 578394 ID: 0b90a3
File 140261847747.png - (349.12KB , 479x600 , 1-54.png )
578394

>Yes, I would say the insects/whatever are definitely just a hallucination based upon an intuitive sense of other peoples' emotions and character.

That's possible, you've seen other people's infestations react to emotions before, and the wasps usually show up when something starts to upset you. Oh god, this is starting to get really bad.

>Do they pull this shit often? If most everyone has a insect around them are these yours or someone Else's? Also if these talk to you can the other insects talk?

You... aren't sure? If other people's insects can talk, you've never gotten close enough to try listening. As for the wasps... usually its something barely audible, whispered and half-heard. Sometimes its like your own thoughts, fears, anxieties; echoed back to you when you are least expecting them. You seem to remember them being more talkative when you were a kid, but looking through the filter of time you aren't sure what they were like. You haven't seen them swarm like this in years.

>Seems like this attack has been brought on by a reminder that you've never been in a relationship with anyone.

How? HOW? How is a creep like that able to... why would she? fffuuuckk....
Not that they can't be allowed to have a relationship; as long as no-one is getting hurt why the fuck should you care?

So, why do you care?

Why the FUCK do you care?

Why can someone like that get close to other people, but every time you get try-

zzzZZZzzzCLOzerrzzzItzzzzCOMESzzzsoonnnnnzzzz

YOU CANT EVEN HEAR YOURSELF THINK LIKE THIS!

>They are speaking to you. You are in a very thick apiarist suit. Standing in a net cage. They are outside the net, and behind you is a portal to the Lagrange. If you need to run, enter it. It will close behind you, leaving you alone.

Fuck it. Mentally, you armor up and feel yourself begin to float. You retreat back to the safety the darkness.
>>
No. 578395 ID: 0b90a3
File 140261848251.png - (214.02KB , 392x600 , 1-55.png )
578395

You open your eyes and after a moment, realize you can't even see through your faceplate. There's a ripple as thousands of tiny bodies jostle against the tough, airtight frame of the EVA suit.

>I know they are creepy but if you can talk to them maybe you can get some information? Going to your safe spot might get rid of them but sometimes confronting something is better than hiding from it.

"Why won't you leave me ALONE? What do you WANT? What's coming? What do you mean?"

Despite the vacuum, their tiny wings drum against your helmet but if they're saying something, you are having trouble understanding it.
ZZZzzzzZZZakkkzzzzzzzellllzzz
>>
No. 578396 ID: 0b90a3
File 140261848713.png - (149.63KB , 472x600 , 1-56.png )
578396

The drumming subsides as one by one they a pulled off of your suit by an unseen force.
>>
No. 578397 ID: 0b90a3
File 140261849498.png - (217.57KB , 570x800 , 1-57.png )
578397

Oh God, what is THAT?

It's like a cloud of fire, some kind of accretion disk? And in the center... dark shapes corruscating with Hawking radiation.

A ring
and
a column.

The whole structure(?) rotates violently, shearing space around it into bizarre waves and alien geometries.
>>
No. 578399 ID: ac14c0

>>578397
WHAT THE FUCK!? New priority: ask your therapist what the fuck she taught you. As soon as we get back to earth, use your cellphone to call her. Your therapist has an infestation too, right?

Are you being pulled in this time? Maybe you should try to rescue your wasps, or otherwise investigate the unknown super-object.
>>
No. 578402 ID: ddcac0

>>578397
Calm yourself, get analytical, what you are witnessing is more monumental than any personal failures or triumphs. That accretion 'disk', it appears more spherical than disk shaped, then, I can't tell how exactly it's interacting with the central rod.

I'd want to say that the hoop is a Niven ring and the rod is a massive gravity engine/anchor, but it's insufficiently lit.. or the backlighting is too intense to tell. Regardless, constructs like like this is register... Type 2 on the Kardashev scale at least!

I think it's feeding on the sun.
>>
No. 578405 ID: 0ee153

>>578402
I don't think it's a Niven ring, unless the planet it's meant to mimic has a very different night/day cycle. There's no sun or light-source in the middle, and no shadow-squares to mimic night. Plus, you just spin the ring to get artifical gravity, an engine isn't usually necessary.
>>
No. 578408 ID: dc4b80

Well you are either crazy in a special kind of way or you have a very interesting psychic talent. Its probably one of those psychic talents that will make you appear crazy if you are not careful. Also your therapist is either very good or knows more then they are letting on. Might want to have a talk with them later about that.

As for your vision it appears to be a massive construct wrapped in a gravity shell that's absorbing a nearby star. Not sure if its actively going after the star or its just passing by but guessing this is the cause of the blue shift.

Needless to say the technology and time put into something like that dwarfs anything your civilization currently has. It also might be the source of the confusing code that's stuck in your quantum computer.

Honestly its all conjecture at this point but keep it in mind for later. For now calm yourself as best you can and observe. Also we should apologize to your wasps once and if they return. As confusing as they are you might need there help later on.
>>
No. 578416 ID: 8936b7

Well, that's probably some sort of gravity generator, likely overclocked into a blackhole generator now somehow. Either way, teleport back to earth orbit. I want you to go down from orbit back to near where you should be. It's time to test if you know astral projection, or are just really good at meditating.
>>
No. 578418 ID: ac14c0

AH! I figured out what the wasps called it.

It's an "axle".
>>
No. 578423 ID: ca0da5

Right, okay, your bees are something stronger than I expected. I mean they followed you to space AND were able to still talk there. Let's... Get out of here. This thing, whatever it is, is dangerous. You need to mediate without using Earth Moon Lagranges.

Return to reality, and get to your task at hand, make sure you don't look like you just had a panic attack strong enough to warrant sending you home for the day, you do NOT want to lose progress on fixing the satellite.
>>
No. 578439 ID: 410c24

>>578418
Yeah, that fits.

I think we misinterpreted the wasps, there. They weren't taunting you that you couldn't get close to anyone, they were warning you that that thing is getting closer.

Let's theorize here. Your hallucinations seem to function on subconscious processing, that puts things together sooner than you're consciously aware of them. That's how your brain is extrapolating emotional responses for people's infestations to act out. That's why you saw the thing by Andromeda before you even read the article.

Which means, if my guess is right, that somewhere deep in your brain, you've somehow put today's information together in some way to have a terrible epiphany about what's out there. And it was bad enough that it manifested as your most traumatic hallucination (the wasps) to alert your conscious attention to it.

Most people get a nagging feeling they're missing something in a situation like this. You brain sends out screaming legions of terrifying insects to shout "look at this!".
>>
No. 578511 ID: f7e1ca
File 140269956101.jpg - (23.10KB , 398x305 , magnet torus.jpg )
578511

>>578397
At the next available oppertunity, look outside the window back on earth.
If the sun is in a 6 shape then something bloody weird is going on.
Especially if you see it form into a 6 shape at some point before the next 8 minutes, because this would mean that your natural psychic abilities work faster than the speed of light.

Anyway why does the axel instantly make me think of pic related?
>>
No. 578595 ID: 2f4b71

>>578397
I'd guess it as a visualisation of the ring singularity of a Kerr/Kerr-Newman Black Hole (rotating) intersected by a 1-dimensional singularity (e.g. Cosmic String). But you'd expect the accretion disc's axis to be aligned with that of the mass of the black hole it's feeding, whereas here they're practically orthogonal. I suppose the object could have formed from a rotating collapsing object (and it's original angular momentum), and later captured the star that is currently feeding the accretion disc in a completely different plane, without sufficient momentum transfer having taken place (yet?) to change the singularity's angular momentum appreciably.

How the heck you end up with two intersecting singularities though...
>>
No. 578703 ID: 0b90a3
File 140285718755.png - (187.17KB , 700x392 , 1-58.png )
578703

>I think we misinterpreted the wasps, there. They weren't taunting you that you couldn't get close to anyone, they were warning you that that thing is getting closer.

Is that what they were trying to do? Warn you about this... thing? What is it?

>I'd guess it as a visualization of the ring singularity of a Kerr/Kerr-Newman Black Hole (rotating) intersected by a 1-dimensional singularity (e.g. Cosmic String).

A ring shaped singularity, intersecting a cosmic string? How could something like that exist? You seriously doubt it would ever happen naturally, but... that implies someone built this thing. Technology of that level is simply... unimaginable, what possible purpose could it serve? You suppose it must somehow account for the blue shift: it must be putting the laws of physics through the wringer.

>It's an "axle".

Well, it looks like its rotating: that's as good a name as any. But what are you supposed to do about it?

>Maybe you should try to rescue your wasps, or otherwise investigate the unknown super-object.

If they're trying to warn you, maybe its in your best interest to help. Your hand shoots out and closes around one of the tumbling hornets.

You start to feel the drag of gravity on your bones, the Axel is pulling you in...
>>
No. 578704 ID: 0b90a3
File 140285719376.png - (157.10KB , 600x480 , 1-59.png )
578704

>"Hey, Hey you okay, man?"

Something is shaking your shoulder. Suddenly you're back on Earth, looking into the face of Anthony, one of Apex's many maintenance workers.
>>
No. 578706 ID: ca0da5

>>578704
Give your head a shake and say yeah, you just didn't sleep to well last night. If he suggests getting some coffee, thank him for the advice, but you're pretty sure you're wide awake now.
>>
No. 578713 ID: ac14c0

>>578704
Tell him you're fine, you were just taking a breather. Look inside your hand.
>>
No. 578729 ID: 410c24

I uh, yeah. Sorry, I got lost in thought there for a minute. Zoned out completely.

After that, unclench your hand. See if there's still a wasp inside, and uh, what it does. If they were really trying to get your attention or warn you, maybe it'll behave differently than in the past, now that you recognized that and saved it. You know, less attacking you, more hanging around?
>>
No. 578830 ID: a36601

>Anthony, one of Apex's many maintenance workers
Wow, do you know the name of almost everyone that works there? Also calm down man, you look like you're having a heart attack.
>>
No. 578882 ID: 7e5f23

>>578830
Maybe he can remember assorted people's names based on their infestation. Or excess brainspace he's looking to burn. Or Anthony has a staff badge pinned to him somewhere.
>>
No. 578892 ID: ca0da5

>>578882
I do see a nametag on him, but I think Nate just remembers people really well because he's wanted to become friends with somebody, anybody, but his condition prevents him from actually befriending them so he simply pays attention to who they all are and remembers names and stuff.
>>
No. 579042 ID: 0b90a3
File 140305349246.png - (130.17KB , 700x550 , 1-60.png )
579042

>Wow, do you know the name of almost everyone that works there? Also calm down man, you look like you're having a heart attack.

Its a big company with a lot of employees: you don't know everybody by name, but the people you see often you know fairly well. You generally do what you can to get along with people, even if you find being close to them terrifying. It probably stems from a desire to not be seen as some kind of nutcase.

Since you much of your work in a clean room, you're pretty familiar with the maintenance crew. Anthony is part of a small army that cleans, filters, and sterilizes your workspace on a daily basis. Additionally, they do general maintenance around the facility.

Anthony
>"Hey, you okay? You want me to go get help?"

Nate
"No... no, I think I'm alright. I must have zoned out there for a second."

Anthony
>"Hmm, well, I gotta get back to work; you should too. Take it easy, man."

He heads back to his multipurpose utility cart, casts a glance in your direction and wheels it around the corner.
>>
No. 579043 ID: 0b90a3
File 140305349812.png - (98.90KB , 446x600 , 1-61.png )
579043

You open your hand, only to find it empty.
>>
No. 579048 ID: 6780f8

Well...I guess back to work, after taking a quick glance around. Still nothing sufficiently concrete to work with. Just keep your eyes and ears open for additional info.
>>
No. 579049 ID: ac14c0

>>579043
...did it not come back with you, or did it somehow disappear off to wherever they normally go when they aren't swarming...? Well, I guess you won't know until you get nervous again.

Get to work. We have the files, better move forward with them. Can't do anything about the Axle in our current situation, if it's even real. Who would you talk to if it were real? Who has enough connections to be able to do something? Do you know anyone who can even theorize as to what would happen if you stuck a superstring into a rotating black hole?
>>
No. 579080 ID: 410c24

Well, that's the end of that, until they come back, I guess.

Time to get to work. You have the plans, go start doing things with them.
>>
No. 579104 ID: 91bee0

>>579043
Write some of this stuff down. That way, you can later be sure you actually got those predictions before you have found concrete evidence. Otherwise, you would have trouble ruling out retroactive memories. (like when you are touched while asleep and dream that someone tries to bite you and finally succeeds. The kind of back-wards causality that comes with our kind of memory.)

Could also work to convince other people, should some of the predictions come true
>>
No. 579445 ID: 0b90a3
File 140322605609.png - (134.50KB , 700x602 , 1-62.png )
579445

Right, need to get moving. You doubt that you've seen the last of those wasps.

Still feeling uncomfortable, you take the stairs back to the first floor, head out into the courtyard and cross over to building C.
>>
No. 579446 ID: 0b90a3
File 140322606193.png - (143.16KB , 700x371 , 1-63.png )
579446

Diego does most of his work on the second floor of the building in the fabrication department. Most of it is an open workshop that isn't technically a "clean" room, but its still nearly immaculate. You swipe your access card and run your shoes through the foot buffer before entering.

You find Diego carefully twisting a sheet of metal through the screaming ribbon-of-death more commonly known as a band saw. This one is pretty small, but would still clip through your hand without giving a single fuck. It is a tool that cares not for your shop-class horror stories, and your OSHA standards, you either respect it or end up having to explain your new Frankenstein's monster hands to the guys at workers comp.

You aren't sure if Diego has noticed you: he may not have heard you approach over the high pitched whine of metal in agony.
>>
No. 579447 ID: e1609c

>>579446
hey, no bugs. Cool.
wait till he finishes, most of those horror stories come from someone being distracted by something while they work.
>>
No. 579448 ID: ac14c0

>>579446
Do not distract him while he's working with a dangerous machine. Why don't you start looking through the files while waiting for him to finish?
>>
No. 579449 ID: ca0da5

>>579447
Well, he's got beetles, they just aren't visible right now. I suppose Nathan's more preoccupied with the REAPER'S SCYTHE INCARNATE than emotions.
>>
No. 579464 ID: 45e338

Put a pair of safety goggles on, better to be safe.
>>
No. 579511 ID: 50338d

>>579448
Yeah, obey safety protocols. You don't approach or bother or distract people using dangerous machinery, especially when their vision is focused on one little area, and their hearing is obscured by screaming metal and ear-protection.

Wait till he's done making that cut, and/or shut off the machine.

>>579449
I will be amused if the bugs are actually just hiding from the noise the jigsaw makes. (Cue beetles poking their heads out from under his clothes as soon as it switches off).
>>
No. 579555 ID: 889404

>>579446
Double back and grab your goggles. Shop rules, dude!
>>
No. 579716 ID: 0b90a3
File 140331561360.png - (143.05KB , 700x415 , 1-64.png )
579716

>Put a pair of safety goggles on, better to be safe.

Good call, you never know what can come flying at you in here.

>Yeah, obey safety protocols. You don't approach or bother or distract people using dangerous machinery, especially when their vision is focused on one little area, and their hearing is obscured by screaming metal and ear-protection.

You stand back and watch Diego carve through the lightweight alloy, inspect it and flip a switch. The whine of machinery slows down as the blade sheds inertia, and he turns around and gives you a toothy smile when he sees you.

Diego takes off a his hearing protection and reveals an amber colored beetle, which stretches and buzzes its wings .
>"Hey, what's up Nate? You alright? You're looking kind of freaked out."
>>
No. 579717 ID: e8d81c

Get some goggles, seriously. That can and will put your eye out if you're not lucky.
>>
No. 579719 ID: ac14c0

>>579716
Don't scratch. Ask him if he read the article about the blue-shift of Andromeda.

Tell him about the plan to restore function to the computer and that you have the schematics here so you can work on it.
>>
No. 579758 ID: 50338d

Haha, the beetle was under the earmuffs. Nice.

Don't scratch your face, and yeah, you're fine. Just a lot of stuff on your plate today.

Start explaining what you need his help for.
>>
No. 579759 ID: ca0da5

>>579719
>>579758
>Don't scratch
Rather than focus on that, just grab the book with both hands for a second, while you explain to him what the situation is.
>>
No. 579774 ID: ff21eb

Also, don't dwell on how absolutely cute he looks when he smiles.
>>
No. 579784 ID: ff21eb

Also, beetles aren't that scary, are they?
>>
No. 579794 ID: bb78f2

>>579716
"Don't I always looked freaked out? These fingernail covers on my hands can't be helping my general composure to people."
>>
No. 580144 ID: 0b90a3
File 140348549344.png - (123.98KB , 600x492 , 1-65.png )
580144

>Just a lot of stuff on your plate today.
>Don't I always looked freaked out?

Nate
"Just a lot of stuff on my plate today but, honestly, when am I not a nervous wreck?"

Diego
"True, its pretty adorable though. So what brings you to me today? Computer troubles?"

Nate
"Yeah its about Cobalt, Hiro had an idea and said you could help."

Diego
>"Ooh, an idea? Hiro to the rescue, again?

He waves dismissively at your confusion.

>"Don't worry about it, what have you found out?"

Nate
"Well, we found out that something has caused Cobalt to start working in base 8, but Hiro can't get a look at what its doing. We need a blank Midas transponder to synch up to it in order to get inside. I have the schematic here, and Hiro said you'd be able to help."

Diego
>"Sure, I'd love to. I haven't had a chance to work with Cobalt in a while; It'll be nice to lend a hand."

You follow him over to a work station and you hand him the schematic binder so he can start taking notes.
>>
No. 580146 ID: 2fd516

>>580144
Ask him what he meant about Hiro coming to the rescue. Also, any theories on why Cobalt started working in base 8?
>>
No. 580206 ID: 40935b

Is there any way the transponder can be simplified since it doesn't need to be space-borne?

Should he be taking down notes if Cobalt's all top secret? I'd ask him at the very least to be careful; your supervisor is breathing down your neck and some nutball with a shotgun was loitering outside earlier. You'd rather not take chances right now.

You could start an office pool. Whoever has the closest guess as to what the hell Cobalt is doing and why wins.

>Hiro to the rescue, again?
OH. Hiro -> Hero.
>>
No. 580222 ID: 2fd516

>hero to the rescue
Oh, hah. Well, I'm more interested in the "again" part anyway.
>>
No. 580242 ID: ca0da5

>>580222
He went to the current company to save the project after it was abandoned by the previous one.
>>
No. 580249 ID: 2fd516

>>580242
Ah. Right.

Well how about instead we ask how he and Hiro figured out how to make a quantum computer? I mean, nobody else has apparently- what triggered the inspiration that let them solve it? I wonder if they were told by their bugs...

Oh speaking of which... Nathan, try touching his beetle, if it comes down to a spot you can reach without being super obvious about it. Have you ever tried picking up someone's insect/whatever? Hah, what if other people can see them too, and they just assumed you can't? It's not like you were always freaked out by them, maybe other people never went through a related traumatic experience? Imagine, nearly everyone in the world sees everyone else with bugs but they aren't bothered by it. Wouldn't that be funny?
>>
No. 580495 ID: c3ad33

yeah - if it doesn't involve making him uncomfortable, and if you feel up to it, try touching one. and ask him what he thinks about the background of the problem at hand!
>>
No. 580736 ID: 189a54

>>580144
So no mention at all about the fact that he finds you adorable?

But yeah, trying to touch his bug if it's possible to do so without being really creepy would be cool. Oh, and ask him if he saw that shady guy with the gun when he came to work, and what he thought of him if he did.
>>
No. 580797 ID: 321d85

Well, remember that he thought the bugs were normal until he stood in an anthill that turned out to be real. Also remember that he sees a therapist, and I'd say it's pretty safe odds that he/she hasn't been lying "Oh, why no, we can't see those bugs, no *snicker**snicker*".
>>
No. 580833 ID: 0b90a3
File 140365703385.png - (128.69KB , 600x463 , 1-66.png )
580833

>Should he be taking down notes if Cobalt's all top secret? I'd ask him at the very least to be careful; your supervisor is breathing down your neck and some nutball with a shotgun was loitering outside earlier. You'd rather not take chances right now.

Diego flips through the manual, jotting down some of the things he'll need. He'll be building a casing and setting up stuff like the power supply and some of the ports: nothing terribly top secret, but you remind him that its a high security document and that he needs to dispose of his notes when he's done.

>Is there any way the transponder can be simplified since it doesn't need to be space-borne?

Nate
"It isn't actually going into space, so it doesn't need to be fancy; just a box we can plug into Cobalt."

Diego
>"Yeah, knowing Hiro, I bet he wants something by the end of the day."

>Ask him what he meant about Hiro coming to the rescue.

Nate
"Speaking of Hiro, what did you mean by 'Hiro to the rescue again?'"

Diego
>"Oh, he's the one that convinced me to get out of Detroit when things were falling apart. I could see the writing on the wall, but I was going to stay because there were so many people I was still connected to there. Hiro's smart as hell, but he's an asshole and he doesn't have much time for bullshit. He cut straight to the point: 'Diego, we need to get the hell out of here if we're ever going to finish this. Fuck this town, fuck this company, you're too smart to get stuck here.'"

>"I kind of miss Detroit though: its harder to find people that... you know, fit my lifestyle in a smaller town like this."

>Any theories on why Cobalt started working in base 8?

You kind of feel awkward having Diego open up like that, so you try and change the subject up a bit.

Nate
"So, er, this base 8 thing? Got any idea how that could have happened?"

Diego
>"You know I can't tell you anything specific, Nate. Its not a huge leap to switch to Octal, its just more of a pain in the ass to work with, though some systems use it because they don't have to deal with using letters to express digits. It honestly shouldn't be too hard to get it back to base 10 once we actually crack it open. but if this doesn't work we may be looking at shutting down and scrubbing the whole damn thing. With a system like Cobalt, it could take weeks to get it back online."
>>
No. 580834 ID: 0b90a3
File 140365703871.png - (223.83KB , 600x600 , 1-67.png )
580834

>Nathan, try touching his beetle, if it comes down to a spot you can reach without being super obvious about it.

Well...

...Diego is pretty absorbed in his notes, and if the wasps were trying to warn you about the axle... maybe the bugs aren't all that bad? Right? Beetle's never harmed anyone, right?

Right?

You ask yourself all of these things, as you slowly extend a finger towards the beetle perched on top of his head, which buzzes at you threateningly.
>>
No. 580835 ID: 0b90a3
File 140365704487.png - (173.41KB , 401x600 , 1-68.png )
580835

Your shaking hand slowly approaches the creature and it suddenly lunges at you, clamping the digit in its over-sized pincer.

Nate
"GAH!"

Diego looks up suddenly with a distant look on his face.
>>
No. 580836 ID: 0b90a3
File 140365705054.png - (204.33KB , 700x534 , 1-69.png )
580836

The world heaves and stretches itself into a long narrow corridor, the walls and floor cut from one seamless piece of stone. At the far end of the hall an unnatural blue light flickers, back-lighting a hunched figure.
>>
No. 580839 ID: e1609c

>>580836
well that's pretty clearly diego. Noting for it, go up and say hello!
>>
No. 580841 ID: c3ad33

okay, so ... we recently found that some things that look totally 100% terrifying might not actually be that bad. so i know it's probably the absolute LAST thing u want to do, but ....
wave at hunched figure?
>>
No. 580842 ID: 2fd516

>>580836
It's Diego. Go up and ask what's going on. Are you in his mind?

What's in the other direction?
>>
No. 580846 ID: 40935b

WHAT. WHAT.

Is there anything on the other end of the corridor, or does it go on and on? And be careful, you've seen some horror movies in your time.
>>
No. 580849 ID: 189a54

>>580836
Uhhhhh...this is weird. Do you think this is a hallucination or did you really affect him?

Call to him first, apologize for sort of apparently breaking into his mind? Check what's in the other direction before you try to approach him, though, you need to confirm a direction to run the hell away in in case there's a jump-scare when you get closer.
>>
No. 580858 ID: 10e6c3

>>580836
Call to him, go up to him. What exactly did we just do here? Go into his mind?
...are we sure we're actually insane? I mean, there's no way to actually verify that we aren't just because this happened, but the more strange things happen the more I'm inclined to believe we're just different, rather than nuts.

Actually... We can test it.
If this is his mind and that's him, we could maybe... Tell him something? Yeah, lets do that. Tell him something only we'd know, or that he wouldn't. Then, when we get out (assuming we get out, of course) we can ask him what we told him. If he knows what we're talking about, there may be more to our condition.
Of course, this is all bullshitting and speculation. Might not work. We could just be hallucinating, and we'll wake up on the floor with dilated pupils.
Oh, speaking of; how long have you known us/have we been here?
>>
No. 580871 ID: dc4b80

Well from hints in his conversation we can probably confirm that he is gay. The whole adorable comment and the mention about his lifestyle being cramped in a small town. So if you are into him feel free to flirt a bit.

As for the Beetle it was acting protective of him. No idea what that means in psychic bug talk but you are probably in his mind or some psychic bug equivalent.

So go check on the figure and see what its working on. But be careful here. We do not want to mess with his mind or aura or whatever to much.
>>
No. 580910 ID: a84063

>>580871
I think you're onto something. It's possible that the bugs are individual defenses -- the wasps protect Nate and the rhinoceros beetle was protecting Diego...That fits with what we've seen so far in every way.

What just happened, on the other hand, doesn't fit with anything and now would be a good time to panic.
>>
No. 580942 ID: 9fabea

Walk down the hallway.

What's the worst thing that can happen, more beetles?
>>
No. 581082 ID: 5786d8

>>580836

Welcome to the inside of Diego's psyche, Nathan. You can thank the beetle.

I think for now we can forget about Midas. The pressing concern now is why a brilliant engineer and physicist has enclosed himself in a claustrophobic chamber of featureless stone.

Perhaps we will learn more if we lead him outside of this little cave and into the open?
>>
No. 581396 ID: 0b90a3
File 140383448062.png - (234.81KB , 406x700 , 1-70.png )
581396

>Are you in his mind?

You... aren't sure? The only thing you are sure of is that this has never happened before. Maybe you've created some kind of mental link and this is your mind's attempt to process it? Or maybe, and more likely, this is all in your head, and your mind is attempting to express some kind of intuition about Diego?

>As for the Beetle it was acting protective of him.

It was definitely trying to protect him. If this is inside Diego's head, then maybe they act as some kind of mental immune system? That still doesn't explain what the hell you're seeing or why you're here.

>Is there anything on the other end of the corridor, or does it go on and on? And be careful, you've seen some horror movies in your time.

You look behind you and find the hall extends off into a grey, poorly defined distance; the walls, floor and ceiling are gouged and scarred as if something heavy had been dragged through the hallway.

>Call to him first, apologize for sort of apparently breaking into his mind?

Nate
"Diego? Is that you? I'm sorry, I don't know how I got here but... what is this? Where are we?"

You approach the figure to find that it's, as you assumed, Diego, sitting with hunched shoulders inches from the wall. A tiny, bulbous screen casts faded colors from a dying cathode ray tube across his large, raw eyes. An iron chain is attached to a ring sunken into the stone below the screen, the other end gripped in Diego's tightly bunched fists.

He makes no move to acknowledge your presence, his hands clenched and his eyes fixated on the screen.
>>
No. 581399 ID: e1609c

>>581396
whats on the screen?
>>
No. 581400 ID: dc4b80

Looks like he might be fixated on watching some sort of memory? Maybe the chain is a attempt to hold on to it? Whats on the screen?

If this is his mind will have to figure out the symbolism behind things.

Am guessing that deep down he is obsessed with a event from his past and the chain is his unwillingness to let it go. Normally I would consider this a invasion of his space but we need to know how your ability works.
>>
No. 581411 ID: 2fd516

>>581396
Look at the sides of that wall Diego's facing. Does it look like the wall is what slid down this corridor? I'm guessing that this Diego was trying to pull the wall back until he was distracted by whatever was on that screen. Try to wave your hand in front of his eyes, or maybe try touching his shoulder to get his attention. If he continues to be non-responsive you could cover the screen entirely to get his attention.

I don't suppose you have any power to create things while you're in here? We could make something that could pull the chain...
>>
No. 581413 ID: bb78f2

>>581396
What's on the screen? Is this a metaphor for how Deigo might feel about his life is going?
Poke chain? get Diego's attention somehow? Staring so closely to a screen isn't healthy, even if it is a mental image. He seems really stressed out about that screen.
Poor guy.

What does Diego go through every day in his brainpan?
You know Deigo seems smaller, is he appearing as a teenager?
>>
No. 581468 ID: 9fabea

block view of screen, see if he responds.
>>
No. 581479 ID: 50338d

Is he just holding the chain? He doesn't appear bound in any way.

Kneel down, don't touch him, and see what he's watching.
>>
No. 581492 ID: a687b7

This is going to sound weird, but...after seeing what's on the screen, sit down in front of it so your face replaces what's on it, and make eye contact. Either it'll break him out of his...whatever, or he'll try to claw your eyes out, so be ready.
>>
No. 581495 ID: dc54ce

Be on your guard. Diego may not be himself, or to say it may be Diego to his core without any social filters. Be ready to run, pinch yourself, or go to your happy place if he pulls something.
>>
No. 581498 ID: 53ba34

maybe offer to help pull the chain, both of you puling may be strong enough.
>>
No. 581501 ID: 321d85

Ok, so, I'm gonna recommend that you be very careful and well-measured about what you do here. Supposing that this is a representation of his mind, I would think very carefully before tampering with it, even if the changes were theoretically positive ones. Maybe try to get his attention first; first by speech, then by touching his shoulder. See if that does anything, first, before you do anything potentially...severe, like interrupting his view of the screen he's so intent on. Heck, that can result in bad reactions in REAL LIFE.
>>
No. 581502 ID: 321d85

>>581479
Oh, yeah, duh; see what he's watching, first.
>>
No. 581511 ID: a84063

I have a very bad feeling about whatever this place is. I'd suggest being very selective about touching anything.

Examine the screen and the ring in the wall closely. Maybe wave your hand in front of Diego's face. Nothing more until you can be relatively certain of the danger level of this place.

If it seems there is no way out, that's when you can start fiddling with the pieces of this puzzle.
>>
No. 581583 ID: 0b90a3
File 140392110381.png - (439.20KB , 800x816 , 1-71.png )
581583

>Look at the sides of that wall Diego's facing. Does it look like the wall is what slid down this corridor?

You look around the edges of the wall and find that there is a noticeable gap between it and the surrounding corridor. Its fits almost perfectly and is likely the source of the marks scarring the hallway, acting as an enormous stone plug.

>whats on the screen?
You look into the screen to see Diego amid a jumble of unfamiliar faces, laughing, fighting, talking; they appear to be people he's known through out his life.
>>
No. 581584 ID: 0b90a3
File 140392110420.png - (102.21KB , 326x600 , 1-72.png )
581584

In a way you can't help but feel a little jealous.
>>
No. 581585 ID: 0b90a3
File 140392110520.png - (111.57KB , 326x600 , 1-73.png )
581585

Woah, yeah. Er...some of them are people he's really known.
>>
No. 581586 ID: 0b90a3
File 140392111151.png - (292.37KB , 800x503 , 1-74.png )
581586

>Get Diego's attention somehow?

You try waving your hand in front of his face, and after a moment of hesitation, shake his shoulder but get no response.

Nate
"Hey, anyone home? You okay Diego? Come, on talk to me?"

You're just about to give up when there is a grinding sound and the stone wall begins to shift away from you with the relentlessness of a glacier.

Diego's eyes widen, he throws himself backwards and heaves on the chain as he tries to pull it back into place. His bare feet struggle to find purchase, raw stone scraping cruelly against his heels and dragging him forward despite his efforts.
>>
No. 581589 ID: 0ee153

Does he like men, women, both, or what?
>>
No. 581590 ID: 2fd516

>>581586
Help him! Get on that chain and pull! ...or give him your shoes. Imagine some up for him, even?

This sortof feels like he's trying desperately not to forget these people. Precious memories... fading with time.
>>
No. 581591 ID: dc4b80

So he is dwelling on the past and trying not to let those old memories fade? Maybe he is lonely here in a small town with out any of his old friends.

Make sure to invite him out later.

Should we help him pull on the chain? Or leave things alone? Not sure if its healthy for him to be dwelling on the past but who knows what this really symbolizes. No matter how hard he pulls those memories will continue to fade and its better to make new ones and live in the present if you can.
>>
No. 581595 ID: 40935b

Whatever is holding the chain to the stone is beginning to crack. If you start pulling the chain too, it might break- I'd hate to see what that would mean. Try to get him to stop- perhaps putting yourself between him and the screen will get his attention?
>>
No. 581597 ID: bb78f2

I think he's clinging to the past and that's all what this signifies.
So... maybe we should be the bad guy here and stop him from dragging on the chain.
He's fixating too damn much on that TV
>>
No. 581598 ID: 2000fd

>>581586
Sha-la-la-la-la-la
Don't be scared, you got the mood prepared
Go on and kiss the girl
>>
No. 581602 ID: 53ba34

the fact his feet are bleeding from this means he is REALLY beating himself up over this. his mental self is taking damage in it's attempt to hold on.
pull him off or cut the chain.
>>
No. 581609 ID: d8a627

Position yourself so as to cover up the screen, even if you have to lean over the chain to do so. "You have new friends, Diego. We won't replace the old, but we can help you keep the memory." Or something to that extent. Then, move out of the way, grab the chain, and help him pull.
>>
No. 581695 ID: 321d85

Again, I'd advocate not doing anything drastic like cutting the chain or trying to stop him or anything - seems way too hasty and presumptuous to just barge into somebody's head and start making choices for them.

It seems (emotionally) hard not to do ANYTHING, though, so while I'd worry a little about covering up the screen,
>>581609
seems pretty good.
>>
No. 581696 ID: 321d85

>>581609
Oh, also, be aware that saying stuff like that mean you're going to need to try to be his friend, which may be difficult for you, but I think he may need it. Probably good for Nate, as well.
>>
No. 581701 ID: 7a71e4

Guys, I'm getting the feeling that this is just what people do in their heads.
You age and grow further apart from people, the corridor represents the passage of time, and everyone continuously kicks and screams to prevent losing things.
Although out of sheer curiosity, lets help him pull.
Best case scenario, we turn back time.
Worst case scenario, we break Diego.
>>
No. 581711 ID: a84063

>>581701
...Which sounds more likely? I'd rather not risk breaking him. We kinda need that thingy built.

Also, he's a potential ally in the inevitable shit-storm to come.

Maybe we could just see if anything jumps out as a reason for us being here, and then start trying to walk in the opposite direction hoping for a way out.

Maybe you just need to go to your safe place to get out of his head?
>>
No. 581803 ID: 7a71e4

>>581711
Frankly I find the idea of even moving the wall ridiculous. Probably weighs tonnes.
Better idea, hug hold onto diego and see if you can take him with you to the safe place.
If you can take clothes with you, I fail to see why bringing anything else -especially anything not larger than you- is all that difficult.
>>
No. 581808 ID: 93ac6c

Still feel like we don't have enough info to make a qualified decision, but we have to do something to move things forward, and the best (and seemingly nicest) option to me is to help him pull the weight. Mind-symbolism and what not.
>>
No. 581929 ID: 984718

>>581808
I don't know, if we're interpreting this place correctly, the healthy outcome is to cherish, but not be bound to memories and people of the past. He will never reclaim what is in his memories.

He must make new ones. We should try to get him to leave the wall, if anything.
>>
No. 581942 ID: 2eb028

>>581586
wtf!? help him pull!
>>
No. 581944 ID: d8a627

>>581929
Thing is, memories do fade over time, but shared memories, memories that are talked about, they're constantly pulled back to the surface by everybody in the loop. A memory kept to oneself will fade, but a memory shared will not.
>>
No. 581967 ID: 0b90a3
File 140407547815.png - (255.92KB , 700x434 , 1-75.png )
581967

>Does he like men, women, both, or what?
You aren't really comfortable peeking in on someone's personal life like that, but from what you saw Diego has an interest in men.

> Get on that chain and pull!
You seize the chain and try to help him pull, but your negligible mass does little to stop the moving stone.
"Come on man! You're hurting yourself, you need to stop!"
>>
No. 581968 ID: 0b90a3
File 140407548391.png - (149.47KB , 600x305 , 1-76.png )
581968

>Better idea, hug hold onto diego and see if you can take him with you to the safe place.
That's an interesting idea. You aren't sure if its even possible, but anything to stop him from-

"OOF!"

Something heavy bowls you aside and you hit the floor hard.
>>
No. 581969 ID: 0b90a3
File 140407548833.png - (278.63KB , 600x600 , 1-77.png )
581969

Winded, you roll upright and feel your heart nearly stop. The filling the other end of the hallway is one of Diego's beetles, except this one is larger than your car and is buzzing with violent malice.
>>
No. 581972 ID: 2fd516

>>581969
You've got a wasp again. Ask what the hell's going on, while trying to avoid the beetle's wrath.

My theory: The infestations are manifestations of regret. Those without them have no regrets. Nate always gets what he wants, right? That's why he has no infestation. This beetle represents Diego's regret of moving away from his friends. To defeat it you must help Diego move on or plan to make more friends here.
>>
No. 581981 ID: 707a11

I think the bugs aren't regrets, they're integral part of people's psyches. The beetle isn't gonna let you interfere here. Respectfully bow out and see if you can leave this psychic space. Is there an exit anywhere? By looking for one, can you create one?
>>
No. 582006 ID: dc4b80

We can worry about what they are later right now we should avoid getting chomped by a angry giant.
>>
No. 582007 ID: b8ceae

>>581969
Yell at the beetle to help him pull if it thinks he should be pulling instead of just sitting there like a lump and getting in the way.
>>
No. 582019 ID: bb78f2

>>581972
Nate wants companionship, so his lack of infestation doesn't mean that because he certainly doesn't always get what he wants. Unless he's already infested by wasps and jsut doesn't notice them that much. Hmm, hivemind insects may mean their issue has something to do with community. His neighbor with the bees might have similar issues/desires to Nate.

Try and get Deigo to help. Or asks wasps to help. Try and summon the power of wasps and sting the ever loving shit out of that giant beetle.

I AM THE PAIN!
>>
No. 582035 ID: 40935b

Unless the wasp has anything to say for itself, there's no way in hell we're taking that thing on. Return your attention to Diego.
>>
No. 582043 ID: d8a627

>>582019
I think he meant Douglas. Nate's infestation is the wasps.
>>
No. 582044 ID: b9d767

Alright, I have an idea of how we could get Diego go let go. The reason he's hurting himself is because he's trying desperately to hang onto people that aren't there, and it's tearing him apart within. To make him let go we need him to accept that people move on, but not insist that he forget those that have come and gone. Furthermore, he should be focusing on those that are with him. If he keeps pulling SOMETHING will eventually break, and that won't be good for him.

Ask yourself Nate, is Diego someone you could call a friend? Because he needs one.
>>
No. 582050 ID: 50338d

Look to the wasp on your shoulder and ask for help. It was trying to talk before, maybe it can tell you what the hell is going on now?

In the meantime, don't interfere with Diego, or try to engage the beetle, unless you have to.
>>
No. 582058 ID: 2fd516

>>582043
Oops. Yes, I meant Doug. Doug doesn't have an infestation because he always gets what he wants, and thus has no emotional baggage/regrets.
>>
No. 582089 ID: 2eb028

>>581969
oh neat! get it to pull the chain
>>
No. 582094 ID: 9ba674

>>582089
Of course! Getting the beetle to help pull the chain is genius!
Seriously though see if you can summon the wasps to help, and if that doesn't work kiss Diego. It will show him that he does have friends here and a potential lover. With built in hand holds!
>>
No. 582096 ID: dc54ce

Wasp! I choose you! Use sting attack!
>>
No. 582337 ID: 0b90a3
File 140425698248.png - (158.61KB , 700x274 , 1-78.png )
582337

>Yell at the beetle to help him pull if it thinks he should be pulling instead of just sitting there like a lump and getting in the way.

You throw your arms up to shield yourself from the nightmare.
"Wait, stop! I'm trying to help!"
The creature bucks its vicious headgear and forces you away from Diego.

> The reason he's hurting himself is because he's trying desperately to hang onto people that aren't there, and it's tearing him apart within. To make him let go we need him to accept that people move on, but not insist that he forget those that have come and gone. Furthermore, he should be focusing on those that are with him.

You address Diego instead.
"Listen, you're trying to hang on to the past and its tearing you up, man. I know that you're lonely, but there are friends here, people that love you. Let me be your friend! let go!"

For a moment Diego's gaze is pulled away from the screen and he looks at you with the eyes of someone lost.
>>
No. 582338 ID: 0b90a3
File 140425698895.png - (185.70KB , 600x455 , 1-79.png )
582338

But he's suddenly yanked forward and stone wall tilts dangerously as it teeters on the edge of some unseen void.
>>
No. 582340 ID: 0b90a3
File 140425700142.png - (178.99KB , 487x600 , 1-80.png )
582340

You look at your shoulder as you sense familiar prickling and aren't surprised to find a huge, glistening wasp perched there.

"You! You were trying to warn me earlier, can you help us?"

The lone insect snaps its wings.
zzt.Weekzz.sztill.wzzzeek

"Please, anything!"

Zzz. Maybeee.can.zzztryyy. Willl. needddd.zommmething.frommm.youu.
Muzzzt.havvve.hivvve.
>>
No. 582344 ID: 53ba34

as long as it doesn't hurt anyone else, they can have whatever!
>>
No. 582345 ID: bb78f2

>>582340
Offer some earwax to it?
I think wasps can use earwax for a hive.
Or I guess maybe some hair?
>>
No. 582346 ID: 2fd516

>>582340
Wow. Um...

Your horns. You can't feel anything on your horns. Let them have your horns.
>>
No. 582347 ID: dc4b80

So its weak from having the rest of the hive sucked off into space? Maybe its saying you need to get them back? Well ask it what you need to do to retrieve the rest of the hive.
>>
No. 582354 ID: 372e50

Wait does it want to set up a hive in you? Do you think you can handle something like that? You said they talked more when you where a kid right? It might be good to reconnect with them a bit.
>>
No. 582356 ID: 2fd516

Oh wait a minute. Last time a bunch of them swarmed, it was because you were overcome by emotion, and this one showed up because you were scared of the beetle. I think it needs more emotion.

So think of something traumatic or embarrassing that happened to you. Dwell on it. Chain it into other bad memories. Stir up your emotions. Or if you have good memories you could think of those but in general I think bad memories are stronger.
>>
No. 582357 ID: dd32d3

>>582356
So are we to assume these insectoid apparitions operate on Patronus rules? Or, like other people are guessing, physical objects?

Let's operate under both assumptions. Offer your horns (seems like the most convenient place), and fuel it with the most powerful memories you can think of. For the sake of playing it safe, I'd suggest positive emotions, since they seem less likely to warp Nate's mind somehow if he concentrates on them. I'd suggest something nostalgic, but excessive nostalgia seems to be Diego's issue to begin with.
>>
No. 582358 ID: 40935b

Keep talking to Diego- he can't keep holding on.

What do they need for a hive, and how can you provide it? and are you willing to?
>>
No. 582401 ID: 50338d

>Willl. needddd.zommmething.frommm.youu.
>Muzzzt.havvve.hivvve.
Where do I get a hive? How do I get a hive?
>>
No. 582409 ID: 4bdd94

You cannot change the past but you can ruin the future by dwelling upon it.
At least that's how i think it goes.
>>
No. 582423 ID: 874cc1

>>582337
get the giant beetle to hold the chain! it'll be able to pull back! just asking it to might work
>>
No. 582533 ID: 0b90a3
File 140435233502.png - (430.79KB , 700x584 , 1-81.png )
582533

>as long as it doesn't hurt anyone else, they can have whatever!

Nate
"A hive? You won't hurt anyone right?"

zzzzNnnno. Nnnnno. zzzzzpainnnn.

"Okay then. What do I do?"

Nothhhinnnng. Ittt.izzzzzz.donnne.

>Keep talking to Diego- he can't keep holding on.
"Diego, don't worry, I'm going to help you..."
You stop-

Something itches. Something deep inside. Your hand goes to your chest and, despite years of trying to control yourself, something rips-

-like paper.

Within the exposed cavity lies a fragile structure composed of hexagonal cells: each covered with a gleaming white cap.
>>
No. 582534 ID: 0b90a3
File 140435234092.png - (349.94KB , 469x700 , 1-82.png )
582534

The chambers bulge and tear themselves open: a new swarm pours fourth and coalesces into a vaguely solid figure.
>>
No. 582535 ID: 0b90a3
File 140435234543.png - (172.24KB , 700x411 , 1-83.png )
582535

It twitches and seethes with activity for a moment, and then launches itself at the giant creature.
>>
No. 582537 ID: e1609c

oh
well then
that was...
something?

I guess get over to diego and try and talk with him some more while queen wasp and beetleborg duke it out
>>
No. 582541 ID: 0dcfda

>>582537
I'm not sure, but I THINK we just became The Pain.
>>
No. 582542 ID: 9b57d3

>>582535
The giant beetle's distracted. Now you can get close to him again. Just put your hand on his shoulder, and tell him you are living your worst nightmare to save him. You are tearing yourself apart so he can heal. ...take him to your safe place?

...actually that's probably all Nate will be able to manage- I doubt he'd be intelligible considering his current state so all he'll be able to do is grab Diego and pull him into his Safe Place.

Right, right... um, Nate. Realize this is not real. You are not really infested. It's a metaphor, that's all.
>>
No. 582544 ID: 5b596d

>>582541
not the bees not the bees!
>>
No. 582550 ID: 53ba34

get diego off the chain.
>>
No. 582587 ID: 4a20fa

Rugby-tackle Diego.
>>
No. 582593 ID: 0f858a

>>582535
no no no you dumb pile of chitin! don't attack the beetle, help with the chain!
>>
No. 582602 ID: 5341db

>>582542
this sounds good
>>
No. 582606 ID: 50338d

>>582535
So, uh, the bugs fighting is a good thing? What the hell happens to Diego is his beetle gets beat up, or worse? What happens to us if the wasp loses?
>>
No. 582653 ID: ccd544

>>582606
That implies the bugs are people's Stands.

Nate, go for Diego, try to take him to the safe place, and make sure he has a space suit too!
>>
No. 582663 ID: 321d85

>>582593
This guy may have it right. It's hard to tell.
>>
No. 582928 ID: 0b90a3
File 140459729846.png - (374.28KB , 600x637 , 1-84.png )
582928

The wasp swarm strikes; dissipating into a twisting cloud of individuals and then reforming and striking again and again where its least expected. The massive beetle swings its head in the enclosed space and desperately tries to connect with its agile opponent.
>>
No. 582929 ID: 0b90a3
File 140459730478.png - (234.76KB , 581x700 , 1-85.png )
582929

>get diego off the chain.
>Rugby-tackle Diego.

With the insects distracted, you hurl yourself at Diego right as the stone wall disappears over the edge. You wrap your arms around his waist and close your eyes and feel yourself being pulled off of your feet and into the void.

>Nate, go for Diego, try to take him to the safe place

"Safe-place-safe-place-safe-place-safe-place-"
>>
No. 582930 ID: 0b90a3
File 140459731025.png - (181.21KB , 700x700 , 1-86.png )
582930

You slow down, and feel yourself begin to float so you open your eyes.

Diego
>"What? Where are we?"

Both of you are floating adrift in your Safe Place. The stone wall hangs several feet below you, the screen dark and forgotten and the chain snaking freely through space.

Nate
"Its kind of a place I go whenever I need somewhere safe, when its all too much for me."

Diego
>"Its beautiful..."
He looks at you and blanches
>"Holy crap, are you okay?"

You examine the freshly torn opening in your side.
"It... it doesn't hurt, It's really fragile though. Oh god, this is really weird."

>"Nate, I'm really sorry, I didn't mean for you to get hurt. I just couldn't let go.."
>>
No. 582932 ID: dc4b80

Its not your fault. If anything it's mine for accidentally ending up in you head somehow. The wasps should be able to fix the hole in my side quickly. I just hope they do not damage your poor beetle to badly.

Show him the sights while you are here. Might be the only chance you get. Just get ready to leave fast if that thing starts sucking stuff into it.
>>
No. 582933 ID: 4ef19e

>>582930
Just say it'll be fine, 'cause it'll be fine. Let him know that when he's ready to return to the physical world, you can bring him back (you can, right?), though suggest (with ample warning) that he looks in the direction of the sudden darkness - there may be something in there he sees that you didn't.
>>
No. 582935 ID: 9b57d3

Tell him about/show him the Axle!
>>
No. 582940 ID: 5eea01

Hugs and forgiveness.
>>
No. 582941 ID: 50338d

>Nate, I'm really sorry, I didn't mean for you to get hurt. I just couldn't let go.
It's not your fault. I'm not even sure how I dragged you into my hallucinations. ...does this mean they're real? Or am I in the middle of having a really deep conversation with you in the real world and this is just my crazy way of processing it, I don't know.

>what do
Poke side, feel irresistible urge to taste creepy hornet hive honey.

...and then yeah, look up and see if the axel is still here.
>>
No. 582942 ID: bb78f2

>>582930
It's okay Diego, we don't even know if you're real Diego or what we even just did. This is mostly mental stuff that we don't understand and we was just experimenting with our imagination, it's more ourfault than anyone, especially if we fucked with the real you's head.

We see bugs infested in almost everyone, Diego who may or may not exist. On a lot of people. Your beetle bit us and here we are. We don't know what it means, but it means something. If you're real Diego, we might've just gone into a trance and given you a nice speech, and I might have just doodled our safeplace and showed it to you, or we might be in a corner not interacting with you at all. We have no idea what's going on in reality, just that we're probably doing something while we're in here.
If nothing really bad happened in reality, and only good things happened, we might do this more often. We hope you're going to feel better about things, but we don't really know.
>>
No. 582944 ID: 5341db

>>582930
>You're seeing this? You're here?
>Do you see that?
Point at the Wheel Axel black hole things... if it's still there...

we might want to get back to reality soon... oh and what happened to the wasps?
>>
No. 582947 ID: b9d767

I couldn't just let... well I don't know what was going to happen but I'm pretty sure it was going to be bad.

Umm, when this is all over, if any of this is real just mention bagels next to you see me. So I know this isn't just in my head because goddamn this is screwy.
>>
No. 582949 ID: 9b57d3

Guys seriously it's spelled Axle. Axel is a Kingdom Hearts character.
>>
No. 582950 ID: d8a627

>>582947
Bagels is silly. Tell him to ask about the Wasps and the Beetle if this is actually something he's in on. Otherwise, we'll just assume Nate had a psychotic breakdown and needs to talk to his therapist ASAP.
>>
No. 582954 ID: eec20a

To Diego: "It's just a flesh wou- er, mind wound."

Witty replies aside, see if the disk/axle/thing is still present out here in space.
>>
No. 583087 ID: a1ca2d

>>582941
It's probably fine to eat. It won't give you a direct connection to the King in Yellow or anything.

>>582949
No, inside the axle is Axel. He's eating sea salt ice cream and trying to ignore the countless bad gay fanfics being written about him.
>>
No. 583088 ID: 6b7ea4

i agree that we should get back out of our heads soon, and also to ask diego to bring it up with us once we're back topside if he remembers.

also, hugs are in order
>>
No. 583093 ID: 40935b

Examine your side- is it changing?

Well. That's never happened before. You may want to mention that you have seen some anomalous astronomical phenomena out here lately, though.
>>
No. 583123 ID: 557bac
File 140468849430.png - (133.92KB , 576x600 , 1-87.png )
583123

Together, you float down to the stone block and alight on it.

>Its not your fault. If anything it's mine for accidentally ending up in you head somehow.

Nate
"Its not your fault, Diego, I ended up in your head by accident and I should have been more careful.

> we don't even know if you're real Diego or what we even just did

"Listen, I don't even know if any of this is real: it could all be some mental fantasy-scape in my head, and you could just be part of my imagination. But if somehow you are part of the real Diego, I'm sorry I was messing around in your mind, but you just looked like you were in so much pain. I've been alone for a long time, and I know how much it hurts: I've wanted to be close to people for years, but have had to deal with this condition which makes it too terrifying to try. The relationships I have had always ended up making things worse..."

>If nothing really bad happened in reality, and only good things happened, we might do this more often. We hope you're going to feel better about things, but we don't really know.

"The only reason this place exists is because sometimes I just needed somewhere away from people. Somewhere where I don't have to worry about people thinking I'm weird or crazy or whatever. Now that you're here, you don't need to hang on to the past like that, there are people who are here for you. It looked like you were so focused on what life had been like, you were blind to the people around you."

Diego
>"People like you?"

You feel yourself blushing.
"I, uh.. well yeah, like me."

>Umm, when this is all over, if any of this is real just mention bagels next to you see me. So I know this isn't just in my head because goddamn this is screwy.

"Like I said: I don't know what's happening here exactly but... when I wake up, could you give me a sign or something if you remember any of this? It would help to know that maybe I didn't just hallucinate this."

Diego
>"Yeah, sure. But even if this is just a dream, thanks for your help, Nate."
>>
No. 583124 ID: 557bac
File 140468850279.png - (518.90KB , 700x700 , 1-88.png )
583124

>Tell him about/show him the Axle!

You feel the familiar drag of gravity and something yanks you off of the orbiting stone block. You find yourself suddenly flipped around and falling into the seething black maelstrom of the Axle.

>"Nathan! What the hell is that?"
>>
No. 583128 ID: 50338d

>Nathan! What the hell is that?
Don't know, yet! Bad, at least.

Looks like it's time to get back to the real world, again.
>>
No. 583133 ID: bb78f2

Hey Diego, think you can think up that transponder and an imaginary Hiro so he can punch an imaginary satilate at it? This little axel might represent whatever crap we got to deal with today because I've seen more of it the more we understood the problem that we're dealing with at work.

I think it's work stress combined with a weird trivia tidbit Kim sent us that doesn't really concern us earthlings at all, combined with our own mental bullshit.
>>
No. 583168 ID: 9b57d3

>>583124
Tell him to wake up. You'll tell him there! Try to eject him from your Safe Place somehow, or eject the Axle even. Then, wake up.
>>
No. 583260 ID: 321d85

If you can, try teleporting to Diego, then teleporting...back to the real world? If you can't, I guess...wake up? Maybe first shouting at him to wake up.
>>
No. 583265 ID: 5341db

>>583168
>>583128
This.
>>
No. 583395 ID: 3401a5

>>583124
errrrr think diego can get back without you?
>>
No. 583556 ID: 557bac
File 140495663429.png - (192.05KB , 600x600 , 1-89.png )
583556

Diego hangs from the chain, clearly being pulled towards the event horizon, but you note that the stone block remains strangely immobile.

>Don't know, yet! Bad, at least.

Nate
"I don't know! "

He reaches down and seizes your outstretched hand, but the gravitational pull tears it off of your arm as if it were paper-mache.
Dragged backwards into the abyss you manage to shout back to Diego.

>Tell him to wake up.
"Don't worry about me! You need to wake up!"
>>
No. 583557 ID: 557bac
File 140495664407.png - (84.46KB , 214x600 , 1-90.png )
583557

Once again the bizarre arrangement of singularities engulf you and you are stretched out, twisted, and compressed into a single point.

>wake up?
Your mind is slammed back into consciousness and you find yourself back in the real world.
>>
No. 583558 ID: 557bac
File 140495665178.png - (117.53KB , 600x479 , 1-91.png )
583558

On the table in front of you Diego closes the binder and hands it back to you.


Diego
>"There we go. I'll have everything sent up to you before too long; you should go get suited up."

Nate
"Th..thanks..."

Your hand and side are all pins and needles and you can't help but shake slightly as your mind catches up. You aren't sure what to say though... You're left waiting for some confirmation that what just happened was some kind of shared experience and you feel your face get warm as uncertainty sets in.

Diego
>"Hey... um, Nate. Listen, I was wondering, did... you want to go do something sometime? I mean, together?"
>>
No. 583559 ID: 5eea01

Nate, this is your chance to get close to someone. He's obviously interested, otherwise he wouldn't be asking.
>>
No. 583560 ID: 53ba34

he's looking for a NOW friend. take it!
>>
No. 583561 ID: 2fd516

>>583558
...maybe it was, but only subconsciously. Tell him yes and figure out a good time for it.

Hey, is there any scrap paper? Draw a representation of the Axle and ask if it looks familiar to him. Then I suppose we should return the folder then get to work on the stuff Doug wants us to do. Hmm, on the way over, why not look through the folder a little?
>>
No. 583562 ID: bb78f2

Umm, yeah sure... so beers or what? I've been cooped up so long I don't even remember how to hang out or have fun with people beyond an occasional on-line game with my neighbor.
>>
No. 583568 ID: 40935b

Okay, it looks like it's a subconscious thing... whatever 'thing' means. Don't go mad with power over your new found ability to subconsciously influence people.

Okay sure, maybe he likes that game Zeke wanted to play? Could you make it a Lan party?
>>
No. 583576 ID: 761017

>>583558
"Sure, I guess... Do you like bagels?"
>>
No. 583589 ID: 4ef19e

>>583558
Agreed with the folks who say to accept! Is there anything you'd like to do, and feel safe doing? You can ask if there's anything he'd like to do, too.

It might be worth taking a glance to see if his beetle's still present at all. Just make sure not to look like you're checking him out or anything... May be a little too forward.

Question for you, Nate: Have you thought much about your preferences in terms of romantic partners? You mentioned you tried flirting with the girl across the counter, but if you're not at all interested in dudes, you should try not to give Diego the wrong idea. (Still totally worth being friends with him, though!)
>>
No. 583637 ID: 638a22

His bug is gone. Is that a good thing?
>>
No. 583647 ID: f098f8

>>583637
I guess we got rid of his emotional bug-age.
Also accept the invitation of doing stuff. LAN PARTY!
>>
No. 583768 ID: b9d767

HAHA, TIME FOR SOCIAL LINKS!
>>
No. 583771 ID: 2fd516

Ah. I figured out what The Axle is. It's just a mental construct. First off, the "gravity" didn't affect anything but Nate in his mindspace. Secondly, there wasn't even a gravity well before Nate theorized the blueshift was caused by a black hole, and thirdly the Axle proper didn't show up until Nate theorized it was aliens. It's all in his imagination.

The whole mind-delving thing might be real though. We should try it again and when we talk to the inner self of the target, we should ask for a secret that will prove we did what we did. Actually, I wonder if we have a secret of Diego's? Nate, from the memories you watched, is there anyone specific you can describe to prove you saw them?
>>
No. 583799 ID: ec9d8b

Nate! You take that nice young man on a friend-date or a date-date the instant work is out! Make some good friends or else!

Also maybe swing by the restroom in a bit and take a gander at your side to make sure no oddities have appeared.
>>
No. 583837 ID: 557bac
File 140512843208.png - (101.74KB , 600x424 , 1-92.png )
583837

>he's looking for a NOW friend. take it!
>It might be worth taking a glance to see if his beetle's still present at all.

You notice that his beetle has disappeared, though there's no telling if or when you'll see it again.

Nate
"Er, yeah! Sure! I'm not sure what you'd want to do though; most nights I hang out and play video games with my neighbor."

Diego
>"That's fine, we don't have to go do anything if you don't want to. It would just be nice to hang out and talk to someone. Here let me give you my number, give me a call after work if you still feel up to it. Would, like, bringing something to drink be cool?"

Nate
"Eh...I mean, I'm fine with it, but I'm not really supposed to drink alcohol though."

Diego
>"Ah, okay. No problem."

>Nate, this is your chance to get close to someone. He's obviously interested, otherwise he wouldn't be asking.

The two of you exchange phone numbers and goodbyes. You head off to get back to work, still shaking with excitement. Being able to help Diego come out of his shell, even a bit, gives you a strange sort of satisfaction. Or maybe its just the elation of finding someone who is interested in hanging out with you. Whatever it is, it feels good.
>>
No. 583838 ID: 557bac
File 140512843763.png - (86.64KB , 600x455 , 1-93.png )
583838

>Question for you, Nate: Have you thought much about your preferences in terms of romantic partners? You mentioned you tried flirting with the girl across the counter, but if you're not at all interested in dudes, you should try not to give Diego the wrong idea. (Still totally worth being friends with him, though!)

Despite the hallucinations plaguing your everyday life, you've still felt attracted to people, which makes everything that much more frustrating and confusing. You've had relationships in the past and as far as you're concerned, you're bisexual.
>>
No. 583839 ID: 557bac
File 140512844336.png - (140.97KB , 298x700 , 1-94.png )
583839

In college you actually dated a guy for quite a while. Since he had no infestation, you felt pretty comfortable but were still reluctant to have a physical relationship. After a while you'd see him and and find little red ticks on him and you started to worry that he was seeing someone else. But your only evidence was "in your head".

You tried bringing it up to him.
At first you were being "silly"
Then "ridiculous"
Then "paranoid"
Finally "psycho"

By the time he had "enough of your shit" the fear and doubt built up until you had wasp swarms every waking moment. The scratching, which had been mostly a nervous tick, turned into long crisscrossed scars across your body. You ended up getting hospitalized and-

"-oh GOD, I've made a huge mistake! What the hell am I doing? I'm not ready for something like this. The hell am I thinking? And what was all that with the beetle and the wasps? Am I some kind of nest now? What even.. what? What the fuck?"
>>
No. 583840 ID: 557bac
File 140512844946.png - (101.06KB , 600x494 , 1-95.png )
583840

You start breathing. A lot.
Too much.
You think you need a minute to collect yourself so you go back outside and sit down in the courtyard. There's a nice rock garden here built with, supposedly, chunks of meteoric iron. You aren't how much that set Apex back but its pretty, as long as people don't put their cigarettes out in it.

>Also maybe swing by the restroom in a bit and take a gander at your side to make sure no oddities have appeared.

You check out the "wound" you opened in your side. There doesn't appear to be any physical change, and the "asleep" feeling has faded but you run your hands over the area trying to find anything different. All you find are old and familiar scars.

You aren't really sure what to do, you're worried about whats happening to you, and feel like you need to talk to someone about it.
>>
No. 583841 ID: 5eea01

Maybe you should call your therapist today. Tell her you've got a date. And about your misgivings, considering...does she know about your, ah, unfortunate relationship attempts?
>>
No. 583842 ID: bb78f2

There's Diego tonight and you finally might be able to talk honestly about it with him.
There's also your therapist, but I don't know how sessions work with her, if you can get a session soon or what, though it may come with an extra charge.

So... your last romantic relationship is what caused this mess? Shit. You haven't met him since then have you? Like, you're not even facebook friends with him? You've talked about that with your therapist right? What's her take on that?
>>
No. 583848 ID: 2fd516

>>583840
Dude, relax. Yes, you fucked up that previous relationship. That doesn't mean you'll fuck up this one, and it might not even BECOME a relationship. You can just be friends.

Also call your therapist. If you can't do that, talk to... I don't know, Hiro? I want to touch another bug, get inside someone else's head, and PROVE you did it. You still haven't proven you were in Diego's head, and not just hallucinating. All you supposedly found out was that he was having trouble letting go of his life before he moved, and needed friends here. That much was fairly obvious because of things he told you. You need to get in someone's head, and get them to tell you something that is significant in the waking world. Like a password or a private memory. If you can prove you have this ability, you will be able to tell people about it. Maybe get a part-time job as a psychic investigator, or gather enough clout to hitch a ride on some spacecraft, even if it's just a private one.
>>
No. 583849 ID: e31ca1

Call the therapist. Talk to her about your date, and confide stuff in her, you know? It will make you feel better.
>>
No. 583850 ID: dc4b80

I would not worry about what happened in the past. Best to move on and learn from your old mistakes.

Hey if you need someone to talk to maybe you can chat with your wasps? Might not be the best conversationalists but might have something interesting to say.
>>
No. 583864 ID: 40935b

Alright alright calm down. This isn't a romantic thing yet, not even close- you're jumping way ahead of yourself.

I think the bugs represent problems or internal conflict. Heather doesn't have any bugs either because life is good or she's just a carefree person, and your supervisor doesn't have any because he's a psychopath or something. psychopathy is surprisingly common in the business world, but that's beside the point. You have a lot of bugs because- well, let's face it, you ended up in an institution. If we're going with the theory that Zeke sees your psychologist and was also set up with an apartment, that means he might be in a similar situation to you. What I don't understand is 'the kid'. He must have some serious skeletons in his closet to have an octopus latched on his back.

Take those notes to where they need to go, we've got ENGINEERING! to do.
>>
No. 583913 ID: 3401a5

>help Diego come out of his shell
i see what you did there.

calm down about Diego. take it one step at a time. i think you've improved enough that you're ready, you have a grasp on the bug things this time - you sort of know what they are and Diego isn't a scared teenager that doesn't understand mental illnesses like the last boyfriend. i say at least try.
>>
No. 583928 ID: 53ba34

of course, we HAVE seen the bugs do things more complex then just fly around.
>>
No. 583934 ID: 638a22

>oh GOD, I've made a huge mistake! What the hell am I doing? I'm not ready for something like this.
Dude, calm down. No reason to move anything any faster than you feel comfortable with.

...and the wasps aren't attacking you this time, at least. They helped with the beetle, remember?

>You aren't really sure what to do, you're worried about whats happening to you, and feel like you need to talk to someone about it.
Well, the obvious question is who are the people you could even talk to about this.

You might want to schedule that for later, though. Can't you distract yourself with the pressing issue of doing your job for a little bit? You've got a thing to make, asap.
>>
No. 583976 ID: b03ddc

why don't you flick the peacock's scorpions In conversation while he's distracted, do you know anything about Anthony, or any other avians, what do you think about the avians any experience with them.
>>
No. 584068 ID: 557bac
File 140527842585.png - (118.72KB , 582x600 , 1-96.png )
584068

>calm down about Diego. take it one step at a time.
>Alright alright calm down. This isn't a romantic thing yet, not even close- you're jumping way ahead of yourself.

Okay, okay... yeah, you're getting ahead of yourself. Diego is an adult, and as long as you're up front with each other, you're sure he'll understand. There's no need to panic about a relationship that doesn't even exist yet. There's no sense in dwelling on the pain you've suffered in the past, and you shouldn't assume Diego is anything like your old boyfriend, Brandon.

>why don't you flick the peacock's scorpions In conversation while he's distracted, do you know anything about Anthony, or any other avians, what do you think about the avians any experience with them.

You aren't sure if you should be so cavalier about messing around in your co-workers heads, if that's what you are even doing. You get the feeling that, even though you helped Diego, you could easily have done some kind of damage while you were in there, and there's no telling what that wasp-entity you created is up to. You feel like it might be good to get some advice from someone who messes with other peoples heads regularly.

>Maybe you should call your therapist today. Tell her you've got a date. And about your misgivings, considering...does she know about your, ah, unfortunate relationship attempts?

With all that's going on, you feel like you should call your therapist, since the last time you dated someone it put you in the hospital. You pull out your phone and call Dr. Cooper's direct line.
>>
No. 584069 ID: 557bac
File 140527844397.png - (162.94KB , 595x600 , 1-97.png )
584069

The voice that comes over the phone is quiet, serene, unshakable.
>Dr. Cooper's office... Oh hello Nathan. How are you doing?

END OF CHAPTER 1

Between Chapter 1 and 2 suggestions will be used to determine what Nate will inform Dr. Cooper about.
>>
No. 584091 ID: 2fd516

>>584069
Tell her about your adventure into "Diego's mind", and how it seemed like you actually did something because of how he acted afterwards. Also mention the Axle, but tell her you think it might just be something your subconscious made out of your imagination. After all, it seems like a pointless construction.
>>
No. 584105 ID: b5130d

No visible bugs on the therapist.

One big thing to bring up is your weird episode 'inside' Diego. What the heck was that? You noticed the bugs kind of respond to or telegraph people's feelings or moods (sometimes before you notice otherwise), so was the whole head trip some weird metaphor for figuring him out? Some part of you making intuitive leaps and expressing them in weird ways? (Crazy as that sounds, you're even more reluctant to consider the alternatives- that it's real, or that you're just losing control and it's getting worse).

The other is the wasps tried to communicate with you, even helped in the context of that hallucination. Something that always seemed confrontational before was something different.
>>
No. 584121 ID: d8a627

>No visible bugs on the therapist.
...Nathan can't see her right now, he just knows her visual appearance and is imagining her facing a window.
>Some part of you making intuitive leaps and expressing them in weird ways?
If it comes down to her asking what he thinks of it, it might be that his realization and reaction left a sort of body-language that caused Diego to react as well.
>Something that always seemed confrontational before was something different.
There's some reasoning behind that that I can think of, but I'd rather hear the therapist's take on it.
>>
No. 584129 ID: ccd544

ALSO

Ask doctor cooper about a good personal camera/recorder that you could hide on yourself, to see how you actually act if you have another one of those "inside their head" episodes, because time clearly passed in the real world, as there were a lot of notes that Diego had to put together, and by the end of the episode he was done.
[Return] [Entire Thread] [Last 50 posts] [Last 100 posts]

Delete post []
Password